Specification

Z6913-XL
TAG ____________
AquaSense Battery Powered Faucet
US 1.855.ONE.ZURN CANADA 1.905.405.8272
ZURN.COM
ZURN INDUSTRIES, LLC
511 W. Freshwater Way, Milwaukee, WI U.S.A. 53204 · Ph. 1-855-ONE-ZURN, Fax 919-775-3541
In Canada: ZURN INDUSTRIES LIMITED
7900 Goreway Drive, Unit 10, Brampton, Ontario L6T 5W6, Ph. 905-405-8272, Fax 905-405-1292
Rev. B Date:
05/06/20
C.N. No. 142671 Prod. | Dwg. No. SS Z6913-XL
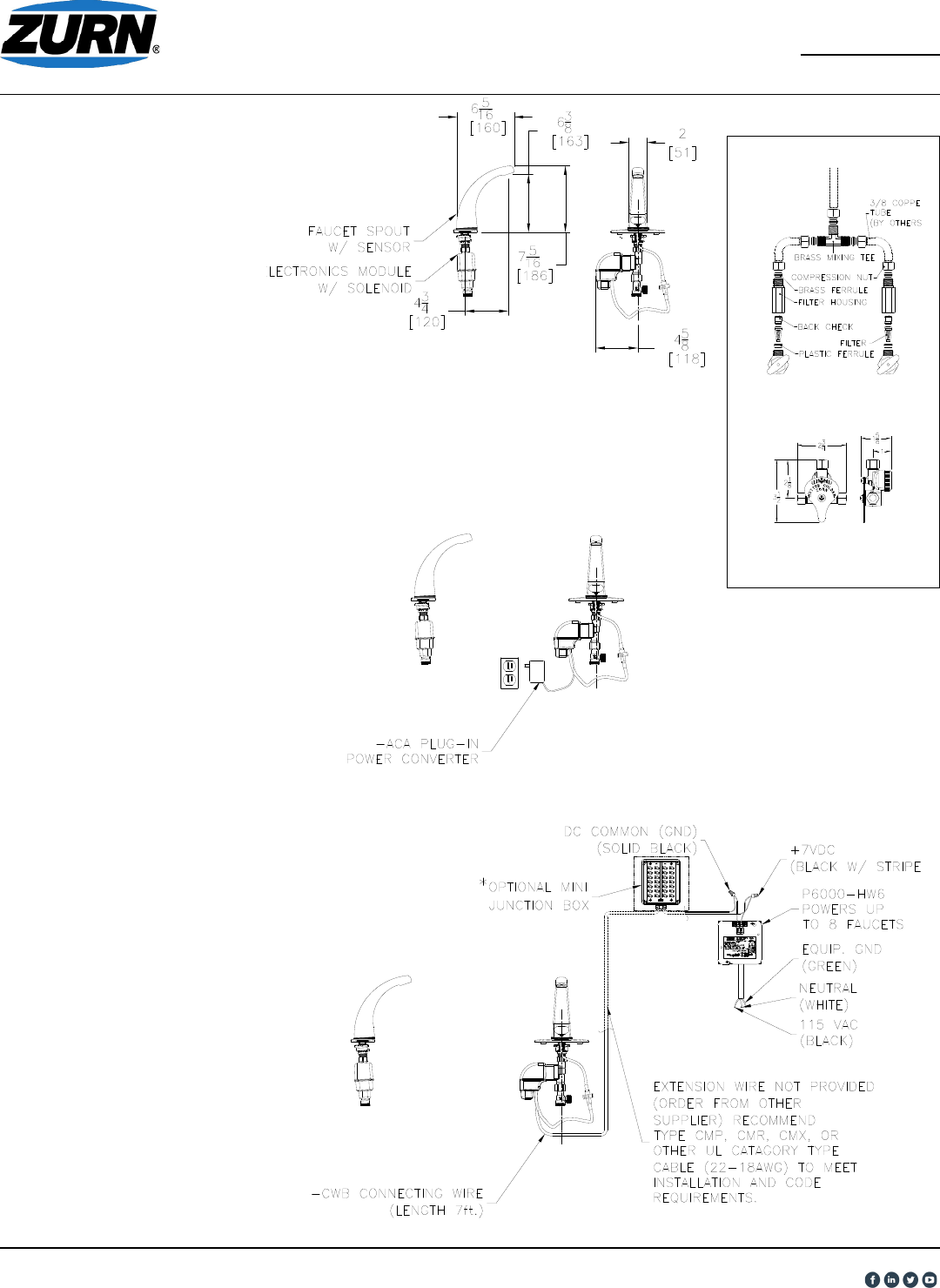
TYPICAL Z6913-XL
AquaSense Battery
Powered Faucet
TYPICAL Z6913-XL-ACA
AquaSense Plug-In
Powered Faucet
TYPICAL Z6913-XL-CWB
AquaSense Hardwire
Powered Faucet
Optional:
* Optional -MJ mini junction box
for connecting up to 8 faucets
Optional Mixing Valves
P6900-MV
Temperature Mixing Valve
P6900-MT
Mixing Tee
NOTE: MUST USE EITHER ZURN
P6000-HW6 HARDWIRE POWER
CONVERTER OR ZURN P6000-ACA
PLUG-IN POWER CONVERTER TO
ENSURE PROPER OPERATION. USING
A POWER CONVERTER OTHER THAN
ZURN MAY RESULT IN OPERATION
MALFUNCTION OR UNIT FAILURE.
NOTE: Recommended
through hole diameter
to properly mount the
spout/shank is 1-1/8”
to 1-1/4”.


