Makeup Air Damper Manual

MODELS MUA006A • MUA008A • MUA010A
Page 4
Damper and outside air duct connected directly to a ceiling, floor, or wall register.
INTERIOR WALL
WALL
REGISTER
REGISTER BOX ADAPTED
WITH SLIDE-IN FILTER (optional)
MOTORIZED DAMPER
WALL CAP WITH
BIRD SCREEN
INSULATED OUTSIDE
AIR DUCT (slope toward wall cap)
EXTERIOR WALL
VENTILATION AIR INTAKE
(locate away from pollutant sources)
TYPICAL INSTALLATIONS
Installations will vary according to the location in the home where the unit is installed and which model Damper is used. Use the following
illustrations and notes as guidance for your own installation. Always comply with local code requirements and in any instance where a detail
shown below conflicts with local code, the local code provision shall apply.
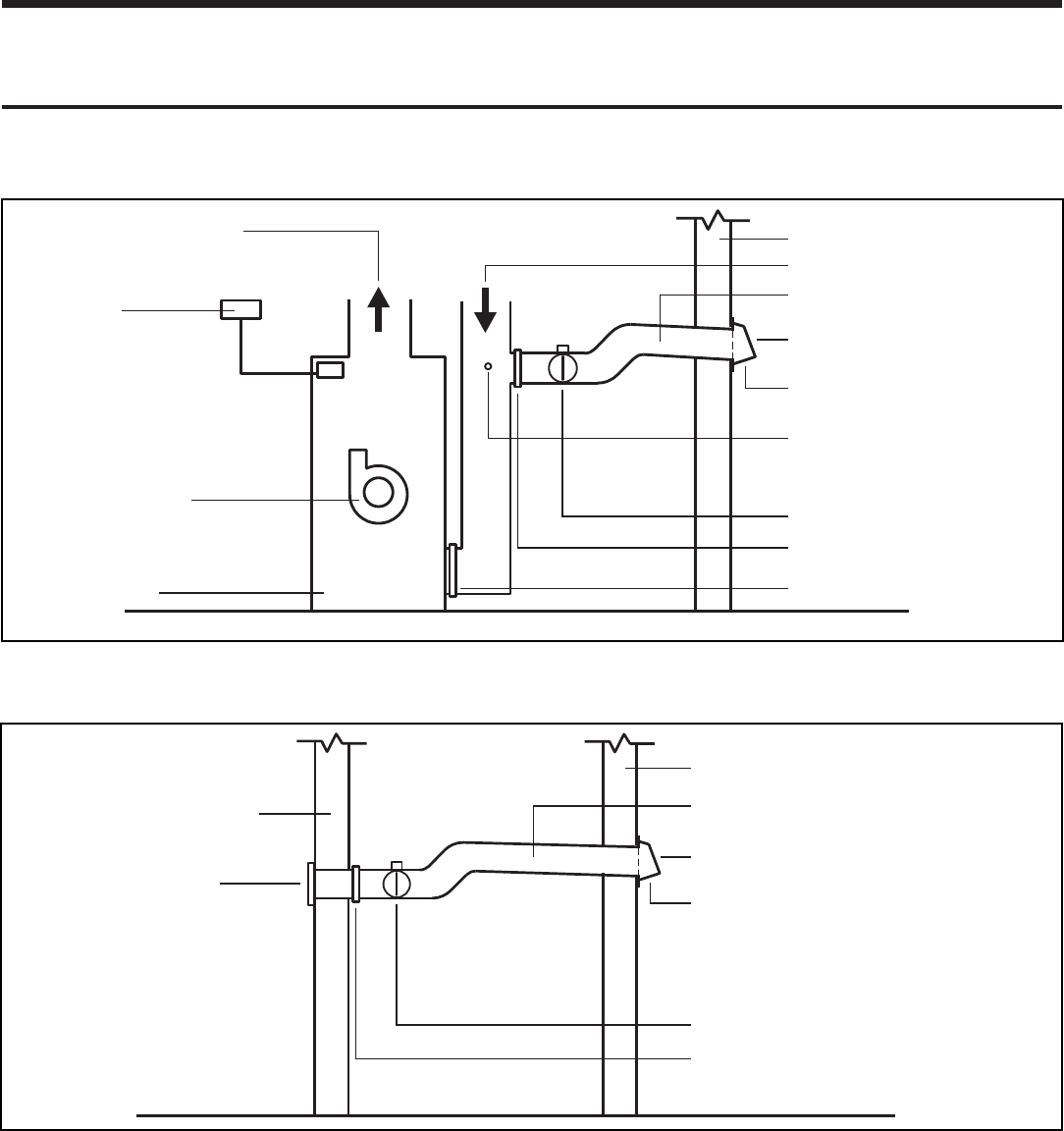
Damper connected to return side of central duct system.
AIR HANDLER UNIT
AIR DISTRIBUTION FAN
THERMOSTAT
CENTRAL SYSTEM SUPPLY AIR
REGISTER BOX ADAPTED
WITH SLIDE-IN FILTER (optional)
AUTO. MAKE-UP AIR DAMPER
FIELD MEASUREMENT OF AVAILABLE
STATIC PRESSURE. (See “Install The
Damper” section on page 5 for damper
balancing instructions.)
FRESH AIR INLET WALL CAP
WITH BIRD SCREEN
INSULATED OUTSIDE
AIR DUCT (slope toward wall cap)
EXTERIOR WALL
VENTILATION AIR INTAKE
(locate away from pollutant sources)
CENTRAL SYSTEM RETURN AIR
CENTRAL DUCT SYSTEM FILTER