Makeup Air Damper Manual

MODÈLES MUA006A • MUA008A • MUA010A
Page 14
Clapet et conduit extérieur raccordés directement au registre d’un plafond, d’un mur ou d’un plancher.
MUR INTÉRIEUR
REGISTRE MURAL
REGISTRE À FILTRE COULISSANT (facultatif)
CLAPET MOTORISÉ
CAPUCHON MURAL AVEC
GRILLAGE AVIAIRE
CONDUIT D’AIR EXTÉRIEUR ISOLÉ
(pente vers le capuchon mural)
MUR EXTÉRIEUR
PRISE D’AÉRATION
(située loin des sources de polluant)
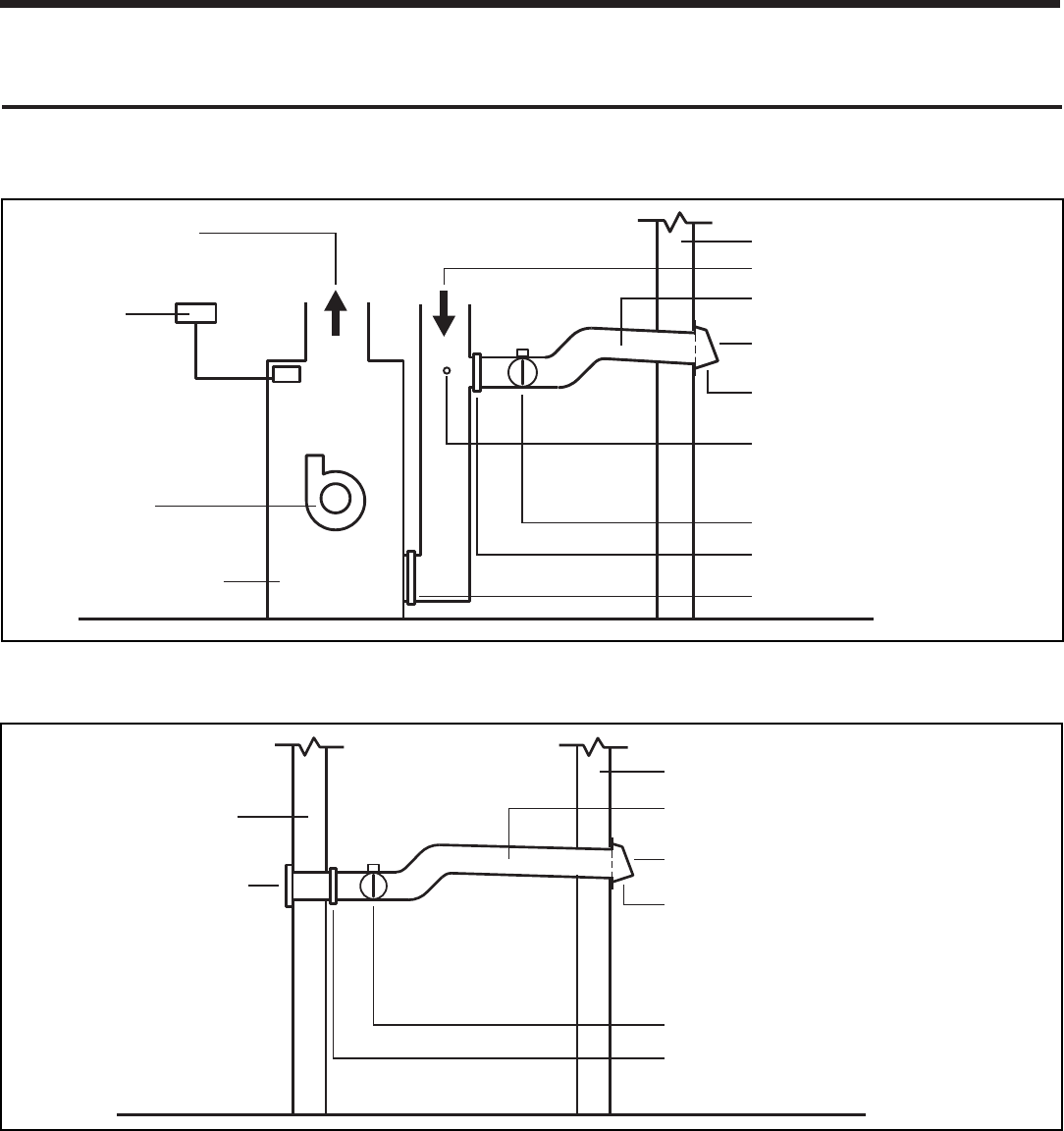
INSTALLATIONS TYPE
Les installations varieront en fonction de l’emplacement de l’appareil dans la maison et du modèle de clapet utilisé. Consultez les
illustrations et notes ci-dessous pour vous guider dans l’installation. Respectez toujours les exigences des codes dans toute situation où
un détail indiqué ci-dessous contredirait les codes locaux. Ceux-ci ont préséance.
Clapet raccordé à la section de retour d’air du conduit central.
APPAREIL DE TRAITEMENT
DE L’AIR
VENTILATEUR DE
DISTRIBUTION D’AIR
THERMOSTAT
DISTRIBUTION D’AIR DU
SYSTÈME CENTRAL
REGISTRE À FILTRE
COULISSANT (facultatif)
CLAPET AUTO. D'AIR DE COMPENSATION
MESURE DE LA PRESSION D’AIR EXTÉRIEUR.
(Consultez la section « Installation du
clapet » à la page 14 pour les directives
d’équilibrage du clapet.)
CAPUCHON MURAL D’ARRIVÉE D’AIR
AVEC GRILLAGE AVIAIRE
CONDUIT D’AIR EXTÉRIEUR ISOLÉ
(pente vers le capuchon mural)
MUR EXTÉRIEUR
PRISE D’AÉRATION
(située loin des sources de polluant)
RETOUR D’AIR DU SYSTÈME CENTRAL
FILTRE DE L’APPAREIL DE CHAUFFAGE










