Range Hood Installation Instructions

Installation - Mounting the Range Hood
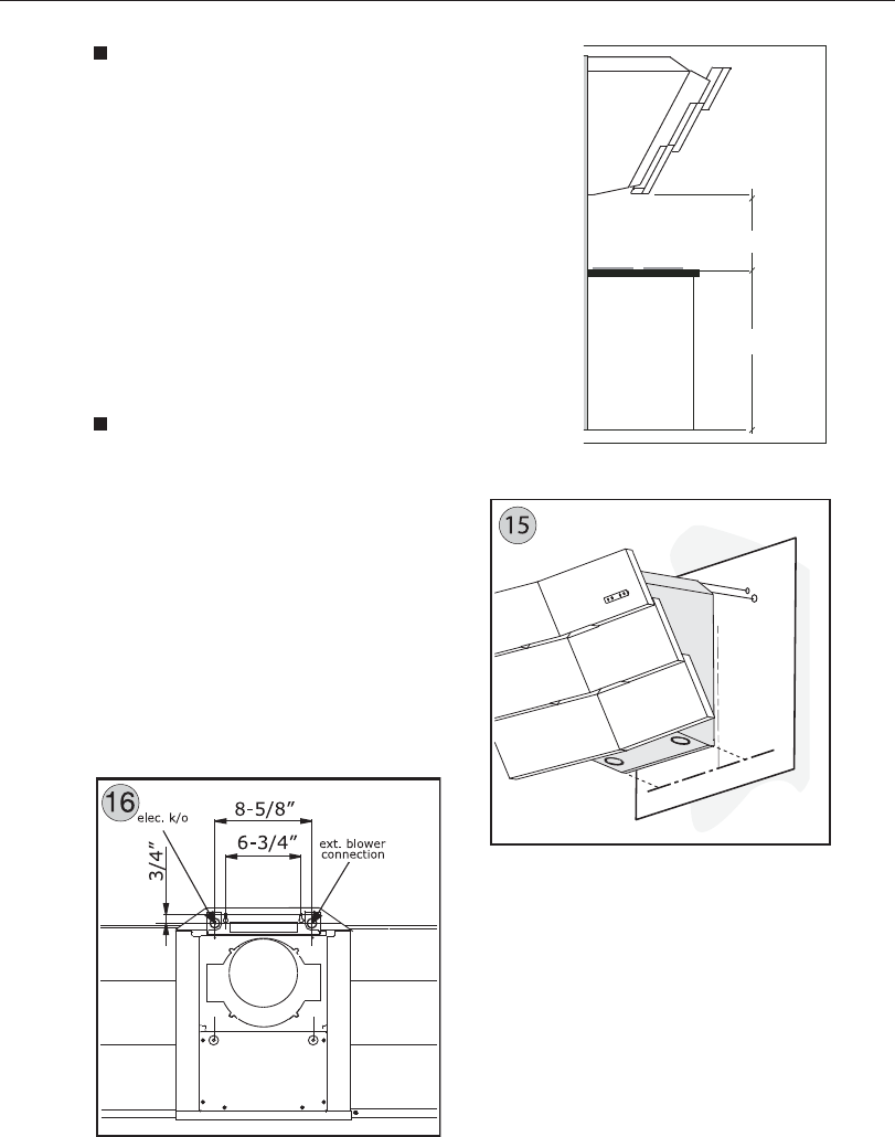
MOUNTING HEIGHTS
The range hood must be installed at a minimum
height of 22 inches (56 cm) from the cooking
surface. If a connecting duct work composed of
two parts is used, the upper part must be placed
outside the lower part. Do not connect the range
hood duct to the same duct used to exhaust hot
air or fumes from another appliance. Before pro-
ceeding with the assembly instructions remove the
decorative mesh lters so that the range hood is
esier to handle.
MOUNTING TO THE WALL
1. Place the paper template included with
your hood on the wall to determine
where to add the screws for mounting
the hood.
Make sure that the line at the bottom
of the template is aligned with the
edge of the rear lower corner of the
hood. Fig. 15
Note! Cut out holes for ducting if venting
out the back. Drill holes for the power
supply and the remote blower power
supply (if required), using the measure-
ments indicated in Fig. 16.
2. Lift the hood onto the (2 type D)
screws and adjust to make sure the
hood is level.
Min 22" - Max 34"
36"
- 17 -










