Range Hood Installation Instructions

Installation - Mounting the Range Hood
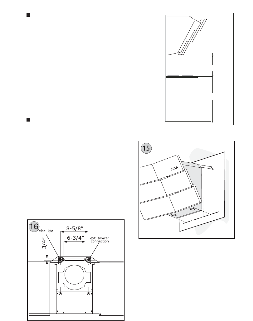
  MOUNTING HEIGHTS
The range hood must be installed at a minimum  
height of 22 inches (56 cm) from the cooking 
surface. If a connecting duct work composed of 
two parts is used, the upper part must be placed 
outside the lower part. Do not connect the range 
hood duct to the same duct used to exhaust hot 
air or fumes from another appliance. Before pro-
ceeding with the assembly instructions remove the 
decorative mesh  lters so that the range hood is 
esier to handle.
  MOUNTING TO THE WALL
1. Place the paper template included with 
your hood on the wall to determine 
where to add the screws for mounting 
the hood. 
Make sure that the line at the bottom 
of the template is aligned with the 
edge of the rear lower corner of the 
hood. Fig. 15
Note! Cut out holes for ducting if venting 
out the back. Drill holes for the power 
supply and the remote blower power 
supply (if required), using the measure-
ments indicated in Fig. 16.
2. Lift the hood onto the (2 type D) 
screws and adjust to make sure the 
hood is level.
Min 22" - Max 34"
36"
- 17 - 










