Make-Up Air Damper Manual

MODÈLES MUA006A • MUA008A • MUA010A
Page 14
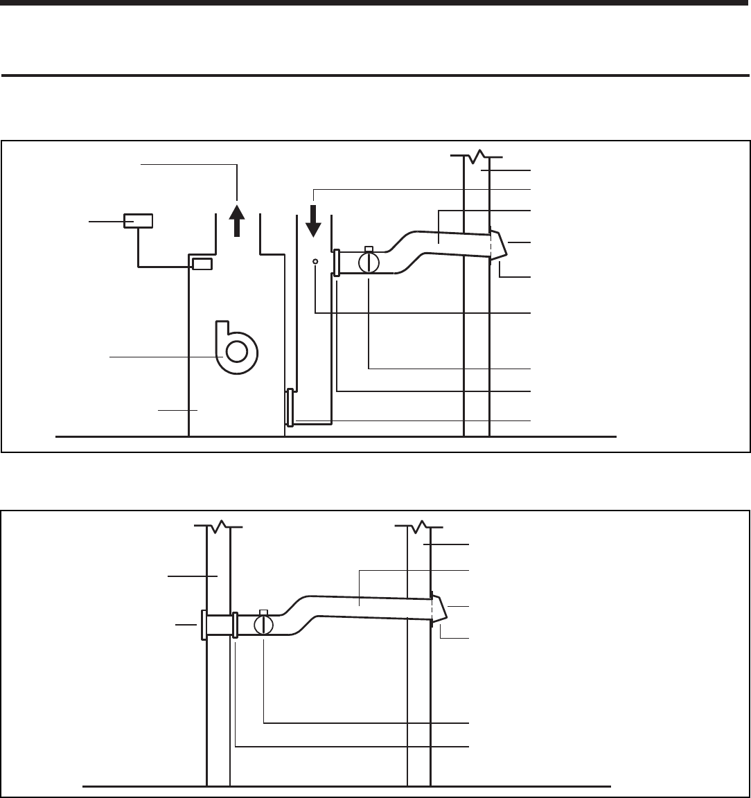
Clapet et conduit extérieur raccordés directement au registre d’un plafond, d’un mur ou d’un plancher.
MUR INTÉRIEUR
REGISTRE MURAL
REGISTRE À FILTRE COULISSANT (facultatif)
CLAPET MOTORISÉ
CAPUCHON MURAL AVEC
GRILLAGE AVIAIRE
CONDUIT DAIR EXTÉRIEUR ISOLÉ
(pente vers le capuchon mural)
MUR EXTÉRIEUR
PRISE DAÉRATION
(située loin des sources de polluant)
INSTALLATIONS TYPE
Les installations varieront en fonction de l’emplacement de l’appareil dans la maison et du modèle de clapet utilisé. Consultez les
illustrations et notes ci-dessous pour vous guider dans l’installation. Respectez toujours les exigences des codes dans toute situation où
un détail indiqué ci-dessous contredirait les codes locaux. Ceux-ci ont préséance.
Clapet raccordé à la section de retour d’air du conduit central.
APPAREIL DE TRAITEMENT
DE LAIR
VENTILATEUR DE
DISTRIBUTION DAIR
THERMOSTAT
DISTRIBUTION DAIR DU
SYSTÈME CENTRAL
REGISTRE À FILTRE
COULISSANT (facultatif)
CLAPET AUTO. D'AIR DE COMPENSATION
MESURE DE LA PRESSION DAIR EXTÉRIEUR.
(Consultez la section « Installation du
clapet » à la page 14 pour les directives
d’équilibrage du clapet.)
CAPUCHON MURAL D’ARRIVÉE D’AIR
AVEC GRILLAGE AVIAIRE
CONDUIT DAIR EXTÉRIEUR ISOLÉ
(pente vers le capuchon mural)
MUR EXTÉRIEUR
PRISE DAÉRATION
(située loin des sources de polluant)
RETOUR D’AIR DU SYSTÈME CENTRAL
FILTRE DE LAPPAREIL DE CHAUFFAGE