User's Manual

AC INPUT
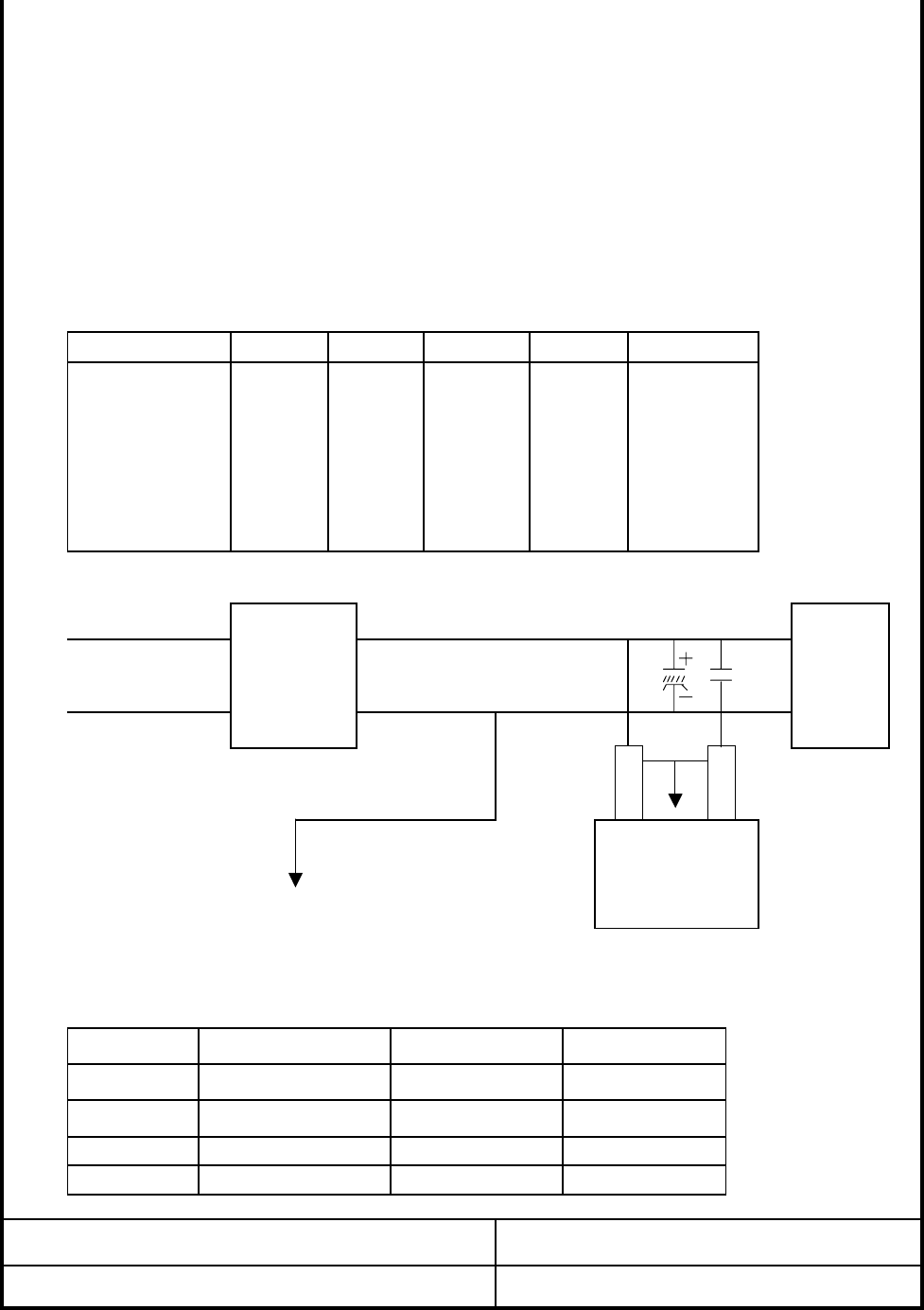
PSU
LOAD
80 "
"
UNIT
20MHz.
a 0.1uF Ceramic capacitors at each output with measuring band width from DC to
+3.3VDC
+5VDC 1.0% -
-1.0%
1.0% -
V return
AC NEUTRAL
-12VDC
mVp-p1.0% - 80
Parameter Range MIN
. The measurements should be made by crossing a 10uF electrolytic capacitor and
NOR
2.2.4 OUTPUT RIPPLE/NOISE
AC LIVE
SCOPE
"
1) The power supply at full load provide AC/DC conversion efficiency 80% minimum.
AC GROUND
120
80
10uF
. Load Slew Rate : 0.5A/us
2.2.5 Dynamic Loading
V OUT
+5VSB 1.0%
2.2.3 EFFICIENCY
+12VDC
MAX
0.1uF
50 "-
PAGE: 3/9ZALMAN SPECIFICATION
MODEL NO: TNN350APF-V1 REV.0 DATE: 2005. 1. 17
Capacitive Load
0.5A/us
1000uF
1000uF
1000uF
1uF
0.5A/us
+5VSB
Step Load Size Load Slew Rate
30% of max load
30% of max load
25% of max load
0.5A/us
0.5A/us
65% of max load
Output
+3.3V
+5V
+12V1,+12V2