Installation Sheet

Assembly and Installation Instruction
Warning!!! Shut Power Off At Fuse or Circuit Breaker .
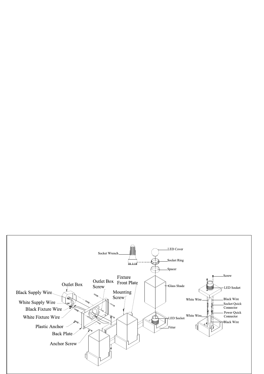
1. Carefully unpack your new fixture and lay out all the parts on clear area. Take care not to loose
any small parts necessary for installation.
2. Hold Back Plate up against the wall aligning the two holes in the Outlet Box with appropriate slots in
the Back Plate. Then while the Back Plate is leveled horizontally, use a pen or pencil to make a mark on
the wall at holes located near each top and bottom of Back Plate. Set aside the Back Plate and insert
Plastic Anchors into the two marks made on the wall
3. Thread the supply wires and ground wire from Outlet Box through center holes in Back Plate.
4. Attached the Back Plate to Outlet box by using the two Outlet box Screws. And thread the Anchor
Screws to Plastic Anchor on the wall.
5. Connect the fixture wires to the Outlet Box wires as follows. Connect the White Fixture wire
to the White Supply Wire, Connect the Black Fixture Wire to the Black Supply Wire. Make
sure all wire Connectors are secure and do not easily pull off with the slight tug. If there is no
Green Ground Wire from the Outlet Box, Connect the Fixture Ground Wire to the Cross Bar
with the Green Grounding Screw provided.
6. Once all wires are connected, tuck them carefully into Outlet Box.
7. Place the Fixture Front Plate over the Back Plate and tighten Back Plate to Fixture Front Plate with
Mounting Screws.
8. Place Glass Shade, onto Fitter, slide Spacer and Socket Ring onto LED Socket, use Socket Wrench to
secure Glass Shade onto LED Socket.
9. Install LED Cover onto LED Socket
10. Return the power to the Outlet Box and test fixture. Your installation is now complete
Relamping:1. Loosen Screws on LED Socket. disconnect the Quick Connector on fixture wires and Socket
Wires.
2.Replace the Bulb.
3. Fit together the Quick Connector. (Note: The Black Wire on the Socket Quick Connector
should match the Black Wire on the Power Quick Connector, the White Wire on the Socket
Quick Connector should match the White Wire on the Power Quick Connector .

