Energy Meter Owner manual
Table Of Contents

<Toc> <Ind> <1. Before Using the Software>
1-5
1.4 Connecting the Power and Energy Meter and
the PC
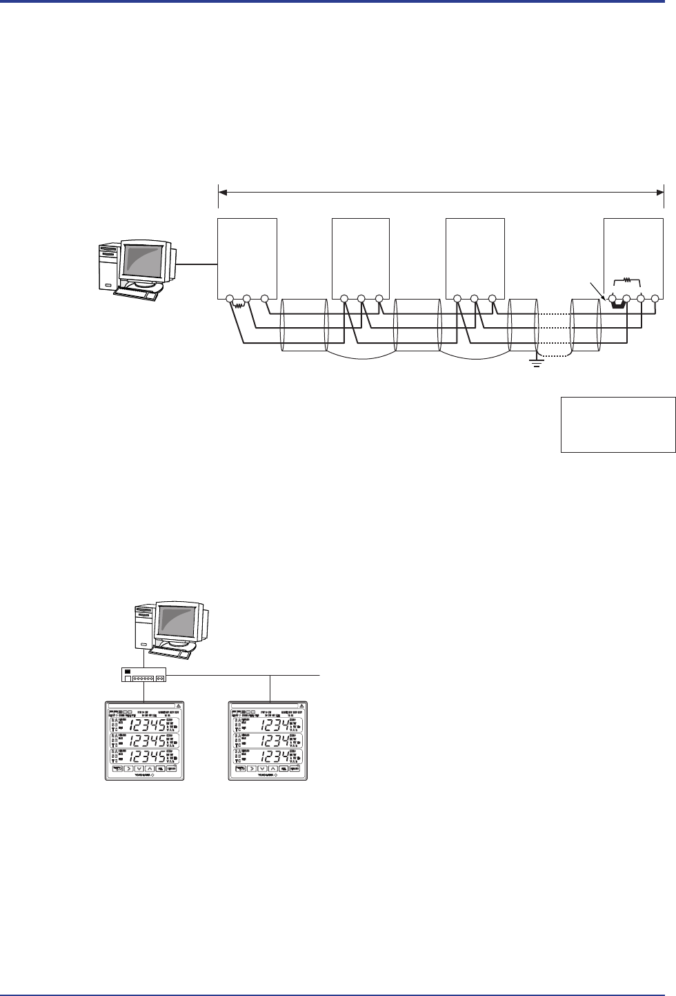
The following three methods are available for connecting the power and energy meter
and the PC.
Serial Communication Connection
(SG)
(B
+
)(A
−
)(B
+
)(A
−
)
(FG)
Terminator
Short circuit
RS-485RS-485RS-485
Approx. 1200 m maximum (31 units maximum)
PC
ML2
RS-232C/RS-485
Converter
(Yokogawa)
RS-232C
straight
cable
PR300
UPM100
UPM101
PR300
UPM100
UPM101
PR300
UPM100
UPM101
Notes:
The PR300 employs a two-wire system for RS-485 communication.
SG: The SG terminal is connected to match the signal level of the RS-485 communication line.
FG: All shielded wires must be connected and then grounded at one place to provide noise protection for
RS-485 communication lines.
120 (built-in)
(A
−
)
(TERM)
(SG)
(SG) (SG)
(B+)
(A−)
(B
+
)
*1
*2
*3
*1
120 Ω externally connected (parts no.: L3035RK)
Use the resistor externally connected without using the built-in resistor of ML2.
Make resistance of the terminator the same as that of the resistor.
*2
When connecting the ML2, use it without returning an echo.
For details, refer to the ML2 RS232-C/RS-485 Converter User’s Manual (IM 77J04L02-01E).
*3
For the UPM100 and UPM101, 120 Ω resistors are not built in.
Set the communication
method of PR300,
UPM100 and UPM101
to Modbus/RTU.
Figure1.2 Example of Serial Communication Connection
Ethernet Communication Connection (for the PR300 Only)
Ethernet
LAN
connection
HUB
IP address: 192.168.1.2 IP address: 192.168.1.3
PC
IP address: 192.168.1.1
Figure1.3 Example of Ethernet Communication Connection
IM 77C01Y01-01E










