Energy Meter Manual
Table Of Contents
- Introduction
- Notices
- Checking the Package
- Checking the Model and Suffix Codes
- Contents
- Chapter 1 Installation and Wiring
- 1.1 Installation with the ANSI 4-inch Round Form or JIS 110-square Instrument Size
- 1.2 Installation with the DIN 96-square Instrument Size
- 1.3 Wiring
- Crimping Terminal Recommendations
- Single-phase two-wire system (voltage input, current input, power supply)
- Single-phase three-wire system (voltage input, current input, power supply)
- Three-phase three-wire system (voltage input, current input, power supply)
- Three-phase four-wire system (voltage input, current input, power supply)
- Three-phase four-wire system (2.5 element) (voltage input, current input, power supply)
- Other Wiring
- 1.4 Attaching the Dust Cover and Terminal Cover
- Chapter 2 Preparations before Starting Measurement (Set up the PR300 First)
- Chapter 3 Parameter Setting Operations
- 3.1 Basic Parameter Setting Operations
- 3.2 Setting the VT and CT Ratios
- 3.3 Setting the Integrated Low-cut Power
- 3.4 Setting RS-485 Communication Conditions
- 3.5 Setting Ethernet Communication Conditions
- 3.6 Setting Pulse Output Conditions
- 3.7 Setting Analog Output Conditions
- 3.8 Setting Demand Measurement Conditions
- 3.9 Setting the Measured Value Display Pattern
- 3.10 Setting the “Indicator-out” Mode and Locking Parameters
- Chapter 4 Operation for Display of Measurement Items and Measurement Method
- 4.1 Measurement Items
- 4.2 Switching Display Pattern
- 4.3 Displaying Measured, Instantaneous, and Maximum/Minimum Values
- Example Display and Measuring Ranges of Active Power (Regenerative Power)
- Example Display and Measuring Ranges of Reactive Power
- Example Display and Measuring Ranges of Apparent Power
- Example Display and Measuring Ranges of Voltage
- Example Display and Measuring Ranges of Current
- Example Display and Measuring Ranges of Power Factor
- Example Display and Measuring Ranges of Frequency
- How to Switch between Instantaneous Value, Maximum Value, and Minimum Value
- 4.4 Phase Switching for Voltage and Current
- 4.5 Displaying Energy Values
- 4.6 Resetting Measured Values
- 4.7 Demand Measurement (Optional Measuring Function)
- Chapter 5 Troubleshooting
- Appendix
- Appendix 1 Specifications of PR300
- Measuring Function
- Power Items and Equations
- Input Specifications
- Digital Input Specifications
- Analog Output Specifications (additional output function)
- Pulse Output Specifications (additional output function)
- Demand Alarm Output Specifications (optional measuring function)
- Communication Specifications
- Standard Performance
- Safety and EMC Standards
- Environmental Conditions
- Mounting and Shape
- Appendix 2 System Reset
- Appendix 3 Parameter Map
- Appendix 4 Parameter List
- Appendix 5 Alphanumeric Characters Table for 7-segment LED
- Appendix 1 Specifications of PR300
- Index
- A
- C
- D
- E
- H
- I
- M
- O
- P
- R
- S
- T
- V
- W
- Wiring diagram
- Single-phase two-wire system
- Single-phase three-wire system
- Three-phase three-wire system
- Three-phase four-wire system
- Three-phase four-wire system (2.5 element)
- Analog output
- Demand alarm output
- Demand alarm release
- Ethernet communication
- Integration control signal
- Palse output
- RS-485 communication
- Wiring diagram

1-8
IM 77C01E01-01E
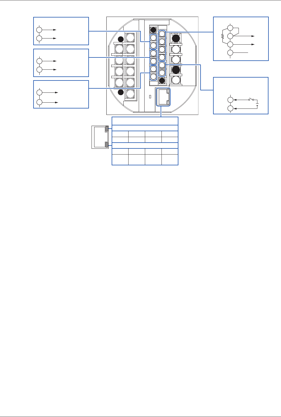
1.3 Wiring
Other Wiring
1
23
45
6
7
8
9
10
11
12
13
14
15
16
17
18
19
20
21
22
23
24
25
a
b
c
d
e
f
Color
Description
Color
Description
Link LED
Off
Stopped
Active LED
Off
Stopped
Orange
10Mbps
Orange
Half
duplex
Green
100Mbps
Green
Full
duplex
Ethernet communication
10BASE-T
100BASE-TX
RJ45 connector
Pulse output
Contact capacity
30V DC, 200mA
(resistive load)
14
13
RS-485 communication
*1
Aⴚ
R:120
(built-in)
TERM
Bⴙ
SG
17
18
19
20
R
Analog output
Output signal:
4 to 20 mA DC
12
11
+
−
+
−
Contact capacity
30V DC, 200mA
(resistive load)
Demand alarm output
ALM+
ALM−
16
15
Optional integration
control signal or demand
alarm release
*2
DIⴙ
DIⴚ
22
21
Switching between 10BASE-T and
100BASE-TX takes place automatically.
Switching between half and full duplex
takes place automatically.
When terminating, short-circuit
terminals 17 and 18 with the
shorting bar.
*1 If Ethernet communication is used, the
RS-485 communication interface is used
specifically for the Ethernet-serial gate-
way function.
*2 In the case of the PR300 with the
demand measuring function, the demand
alarm release is selected.
Voltage signal
ON signal: 4.5 to 25 V DC
OFF signal: within 1V DC










