Unit installation
Table Of Contents

P15 OF 38
USER NOTES AND SERVICE LOG
6"
6"
12"
100"
6"
20"
12"
6"
20"
18"
21"
11"
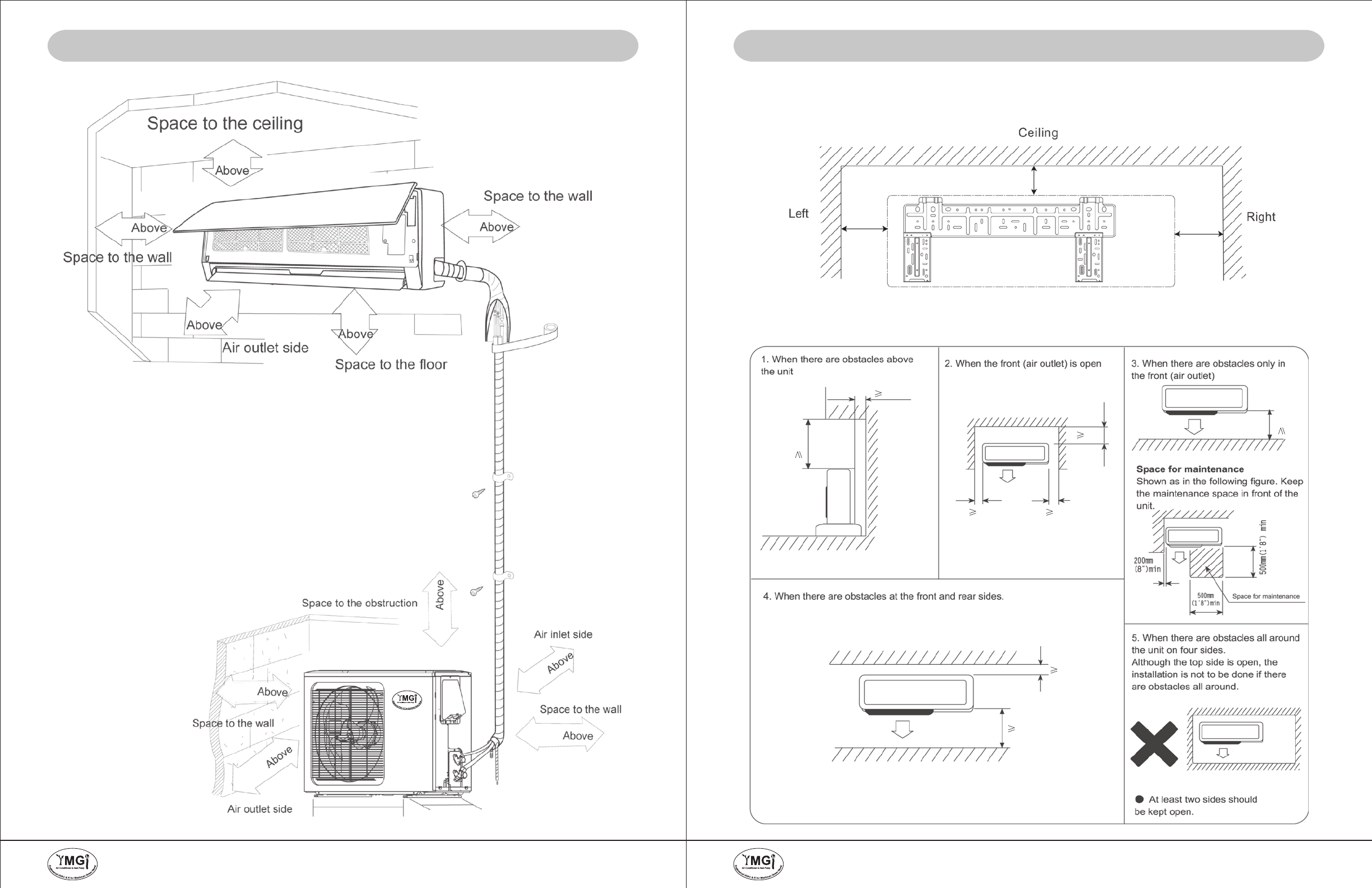
INSTALLATION CLEARANCE REQUIREMENTS GENERAL
YMGI, A COMFORT MAKER, A JOY COMPANION, A SATISFACTION GUARANTOR...
P16 OF 38
INSTALLATION POSITIONS FOR INDOOR UNIT
MAKE SURE OF ENOUGH SPACE FOR INSTALLATION AND MAINTENANCE
To take into consideration the operational convenience and safety in installation, it is recommended to ensure
enough space between the unit and the walls.
Attention: If there are some additional function devices to install on the unit, be sure add to the
installation space for the function devices.
YMGI, A COMFORT MAKER, A JOY COMPANION, A SATISFACTION GUARANTOR...
>7.8 In
>8 In
>6 In
(If piping runs
to right)
(If piping runs
to Left)
INSTALLATION CLEARANCE REQUIREMENTS AROUND THE OUTDOOR UNIT
8 In
18 In
6 In
8 In1 In
18 In
6 In
38 In










