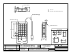
2D CAD
1 LOA = 54"
2
1.45"
1.45"
.070"
1.45"
1.45"
.070"
.070"
.070"
.075"
.075"
0.46"
0.94"
0.25"
TACT. SWITCH
USB CABLE
1
INDICATOR LEDS
0.75"
3.00"
0.75"
3.79"
1.29"
REMOVABLE FOOT
PI ENGINEERING
101 INNOVATION PARKWAY
WILLIAMSTON, MI 48895 U.S.A.
DWG BY
M.L.R.
APPR BY
SCALE:
DATE
NTS
TITLE:
PRODUCT DETAIL DRAWING
JOB NO.:
PRODUCT: XK-24
CUSTOMER:
TOLERANCES UNLESS
OTHERWISE SPECIFIED
X.XX=
X.XXX=
+
_
+
_
0.010
0.005
THIS DRAWING AND THE INFORMATION CONTAINED
ARE THE PROPERTY OF PI ENGINEERING AND IT IS NOT
TO BE REPRODUCED, COPIED OR USED IN ANY
WAY DETRIMENTAL TO THE INTEREST OF PI ENGINEERING
SIZE:
A4
REV DESCRIPTION
DATE
PH# 1-517-655-5523
WWW.PIENGINEERING.COM
INCLUDES TWO REMOVABLE FEET
1.65"
5.80"
4.49"
SGL KEY
BLOCKER
4.4
KEY OPTIONS
QUAD KEY
VERT DBL KEY
HORZ DBL KEY
SGL KEY

