User Manual
Table Of Contents
- 1. Introduction
- 2. GR47/GR48 Radio Devices
- 3. Abbreviations
- 4. Mechanical Description
- 5. System Connector Interface
- 5.1 Overview
- 5.2 General Electrical and Logical Characteristics
- 5.3 Grounds
- 5.4 VCC - Regulated Power Supply Input
- 5.5 Battery Charging Input (CHG_IN)
- 5.6 Turning the Radio Device ON/OFF and the External Power Signal
- 5.7 Analogue Audio
- 5.8 PCM Digital Audio
- 5.9 Serial Data Interfaces
- 5.10 SIM Card Related Signals
- 5.11 Service/Programming
- 5.12 Buzzer
- 5.13 LED
- 5.14 General Purpose Digital I/O Ports
- 5.15 Extended I/O capabilities
- 5.16 General Purpose Analogue I/O Ports
- 5.17 External I 2C Serial Control Bus
- 5.18 TX_ON - Burst Transmission
- 5.19 Real Time Clock
- 6. Antenna Connector
- 7. Keyboard Interface
- 8. Hints for Integrating the Radio Device
- 9. Embedded Applications
- 10. TCP/IP Stack
- 11. Technical Data
- 12. Declaration of Conformity
- 13. Introduction to the Developer’s Kit
- 14. Using the Developer’s Kit

4. MECHANICAL DESCRIPTION
18
LZT 123 7589 R1A
• Keypad, display, microphone, speaker and battery are not part of the
radio device.
• The SIM card is mounted in your application, external to the radio
device.
• The System Connector is a 60-pin, standard 0.05 in (1.27 mm) pitch
type. The pins and their electrical characteristics are described in
5. System Connector Interface, page 19.
• Information about the Antenna Connector is found in
6. Antenna Connector, page 51.
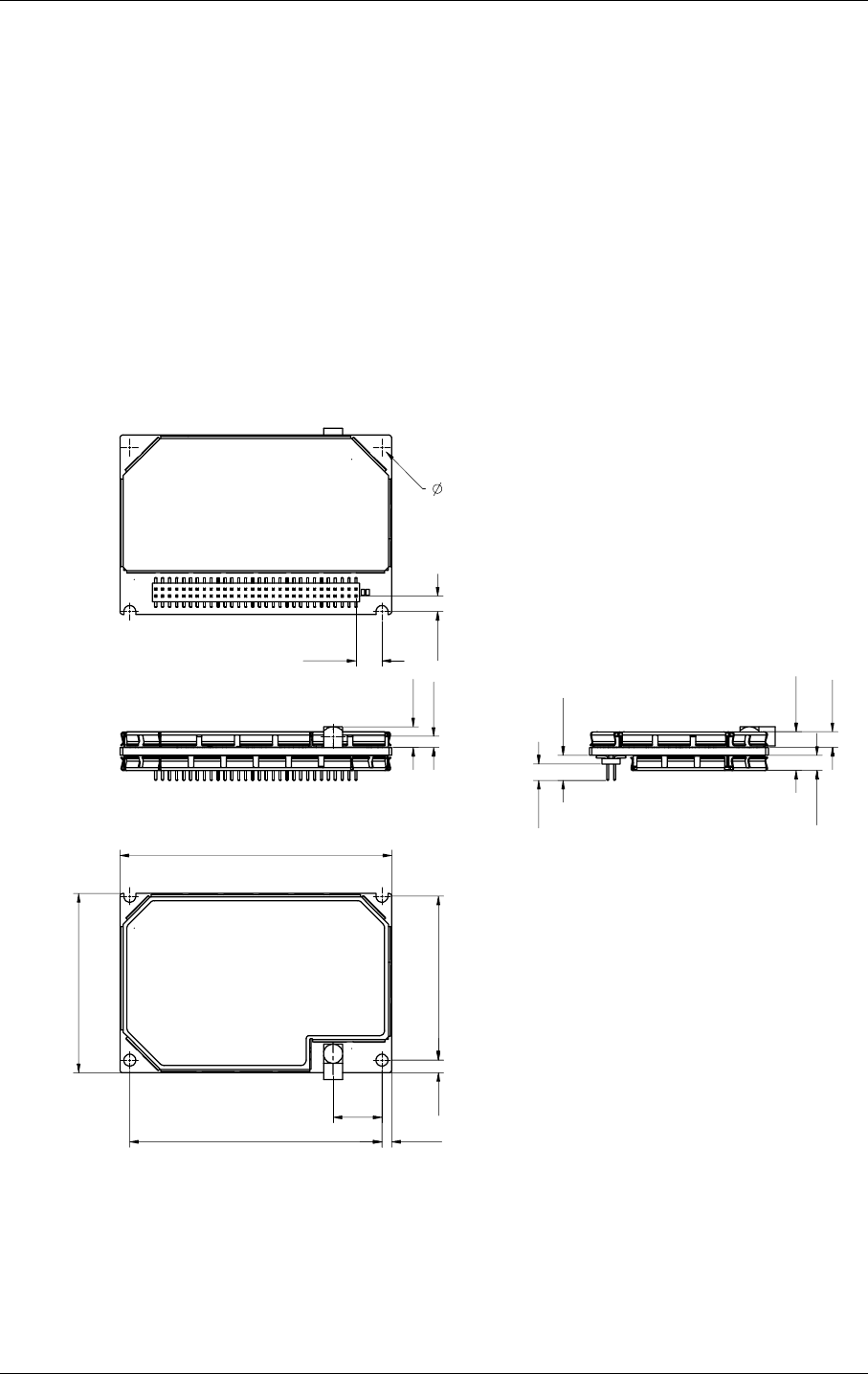
4.2 Physical Dimensions
Figure 4.3 Dimensions of the Radio Device
Measurements are given in millimetres. See also Technical Data, page 63.
4.78
9.00
46.40
50.00
2.20 (4x)
1.80
2.86
2.053.80
4.60
2.80
7.15 2.90
30.20
2.30
33.00
3.00