Installation Instructions

6
|
Wolf Customer Care 800.222.7820
SPECIFICATIONS
Convection Steam Oven
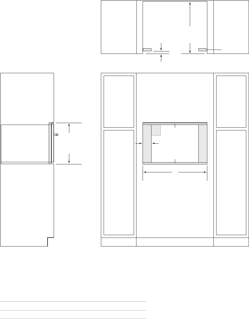
FLUSH INSET INSTALLATION
E
W
FLUSH INSET WIDTH**
FRONT VIEW
SIDE
VIEW
24" (610)
FLUSH INSET
DEPTH
7
/
8
"
(22)
*W
ill be visible and should be finished to match cabinetry.
**
Dimension provides minimum reveals.
18
1
/8"
(460)
FLUSH INSET
HEIGHT**
5
/16"(8)
1
/8" (3)
A
TOP VIEW
FINISHED
CLEATS*
OPENING WIDTH
W A
24" Model 23
3
/4" (603)
13
/16" (21)
30" Model 30
1
/8" (765) 4" (102)