Installation Instructions

wolfappliance.com
|
5
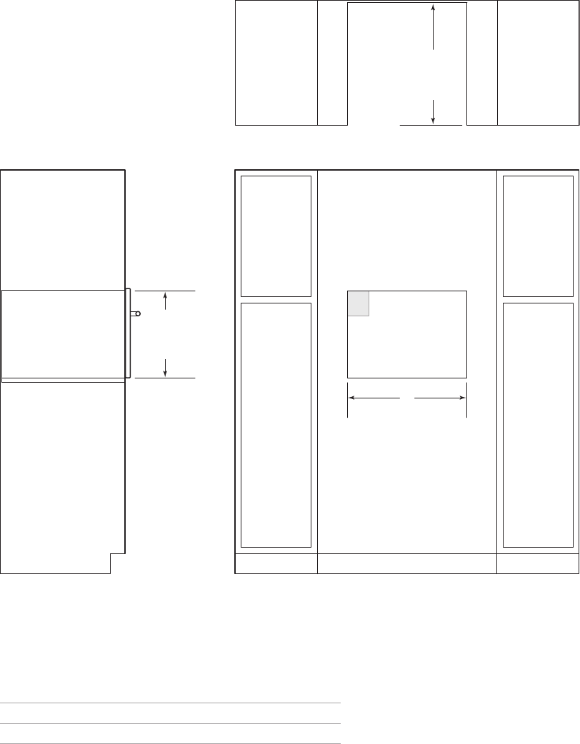
SPÉCIFICATIONS
Four à convection et vapeur
INSTALLATION STANDARD
LARGEUR DE L’OUVERTURE
LARGEUR (W)
Modèle de 24 po 22
1
/8po (562)
Modèle de 30 po 22
1
/8po (562)
E
VUE DE FACE
VUE DE PR
OFIL
REMARQUE : les modèles 24 po
(610 mm) et 30 po (762 mm) nécessitent les mêmes dimensions d’ouverture.
17
11
/16 po
(449)
HAUTEUR DE
L’OUVERTURE
23 po
(584)
PROFONDEUR
D’OUVERTURE
VUE DE DESSUS
W
LARGEUR
DE L’OUVERTURE