Installation Instructions

6
|
Atención al cliente de Wolf 800.222.7820
ESPECIFICACIONES
Horno de vapor de convección
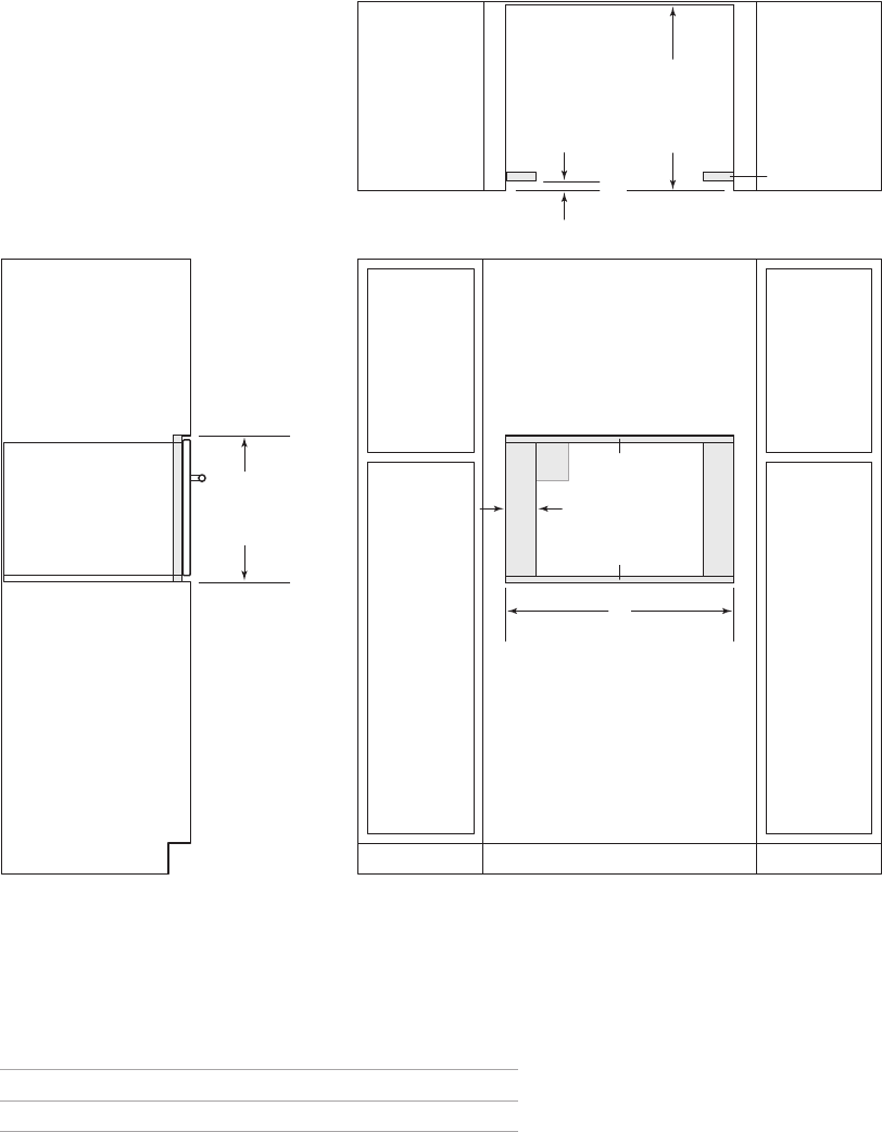
INSTALACIÓN EMPOTRABLE
ANCHO DE ABERTURA
ANCHO (W) A
Modelo de 24" 23
3
/4" (603)
13
/16" (21)
Modelo de 30" 30
1
/8" (765) 4" (102)
E
W
ANCHO DE LA
INSTALACIÓN EMPOTRABLE**
FRONT VIEW
VIST
A LATERAL
24" (610)
PROFUNDIDAD
DE LA
INSTALACIÓN
EMPOTRABLE
7
/
8
"
(22)
*Será visible y debe tener un acabado que haga juego con los gabinetes.
**Dimensión mínima proporciona revela
.
18
1
/8"
(460)
ALTURA
EMPOTRABLE**
5
/16"(8)
1
/8" (3)
A
VISTA SUPERIOR
CORNAMUSAS
TERMINADAS*