Installation Instructions

wolfappliance.com
|
5
E
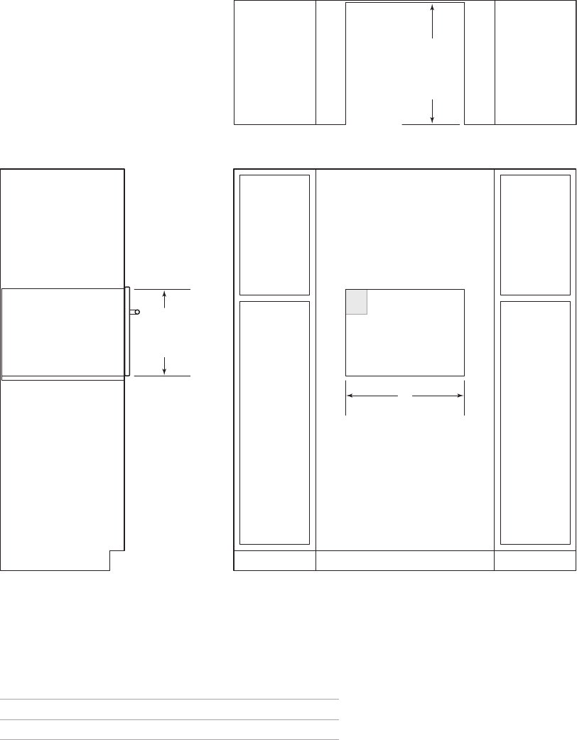
VISTA FRONTAL
VIST
A LATERAL
NOTA: los modelos de 24
" (610) y 30" (762) requieren las mismas dimensiones de abertura.
17
11
/16"
(449)
ALTURA DE LA
ABERTURA
23"
(584)
PROFUNDIDAD
DE LA
ABERTURA
VISTA SUPERIOR
W
ANCHO DE ABERTURA
ESPECIFICACIONES
Horno de vapor de convección
INSTALACIÓN ESTÁNDAR
ANCHO DE ABERTURA
ANCHO (W)
Modelo de 24" 22
1
/8" (562)
Modelo de 30" 22
1
/8" (562)