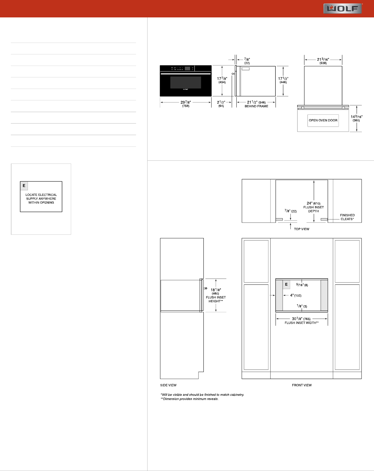
Quick Reference Guide - Flush Installation

30"MSERIESCONTEMPORARYCONVECTIONSTEAMOVEN
PRODUCTSPECIFICATIONS
Model CSO30CM/B/TH
Dimensions 297/8"Wx177/8"Hx211/2"D
OvenInteriorDimensions 177/8"Wx11"Hx153/4"D
Capacity 1.8cu.ft.
DoorClearance 143/16"
Weight 80lbs
ElectricalSupply 240/208VAC,60Hz
ElectricalService 20ampdedicatedcircuit
PowerCordLength 6Feet
Receptacle NEMA6-20Rgrounding-type
ELECTRICAL
NOTE:Dimensionsinparenthesisareinmillimetersunlessotherwise
specified
DIMENSIONS
FLUSHINSTALLATION
Specificationsaresubjecttochangewithoutnotice.ThisinformationwasgeneratedonNovember7,2018.Verifyspecificationspriortofinalizingyourcabinetry/enclosures.


