
wolfappliance.com
|
5
SPECIFICATIONS
Convection Steam Oven
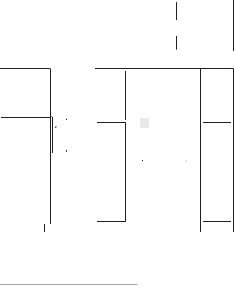
STANDARD INSTALLATION
E
FRONT VIEW
VIEW
(610) and 30" (762) models require the same opening dimensions.
17
11
/16"
(449)
OPENING
HEIGHT
23" (584)
OPENING
DEPTH
TOP VIEW
W
OPENING WIDTH
OPENING WIDTH
W
24" Model 22
1
/8" (562)
30" Model 22
1
/8" (562)