Installation Guide

6
|
Service à la clientèle de Wolf 800.222.7820
E
W
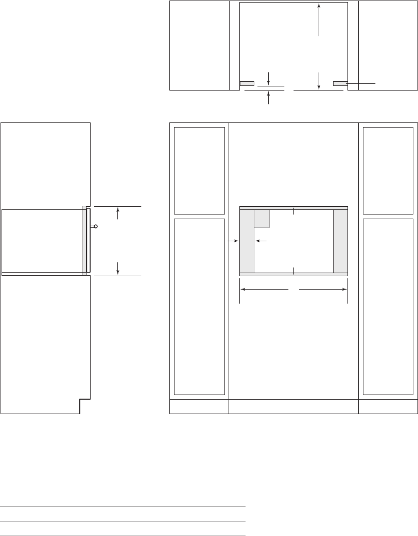
LARGEUR
DE L’AFFLEUREMENT**
VUE DE FACE
VUE DE PR
OFIL
24 po (610)
PROFONDEUR
DE
L’AFFLEUREMENT
7
/
8
po
(22)
* Seront visibles et doivent avoir une finition correspondant à l’ébénisterie.
** Dimension fournit minimum révèle
.
18
1
/8 po
(460)
HAUTEUR
DE
L’ AFFLEUREMENT**
5
/16 po (8)
1
/8 po (3)
A
VUE DE DESSUS
TAQUETS
FINIS*
SPÉCIFICATIONS
Four à convection et vapeur
INSTALLATION À AFFLEUREMENT
LARGEUR DE L’OUVERTURE
LARGEUR (W) A
Modèle de 24 po 23
3
/4po (603)
13
/16po (21)
Modèle de 30 po 30
1
/8po (765) 4 po (102)