Quick Reference Guide - Standard Installation

30" M SERIES CONTEMPORARY CONVECTION STEAM OVEN
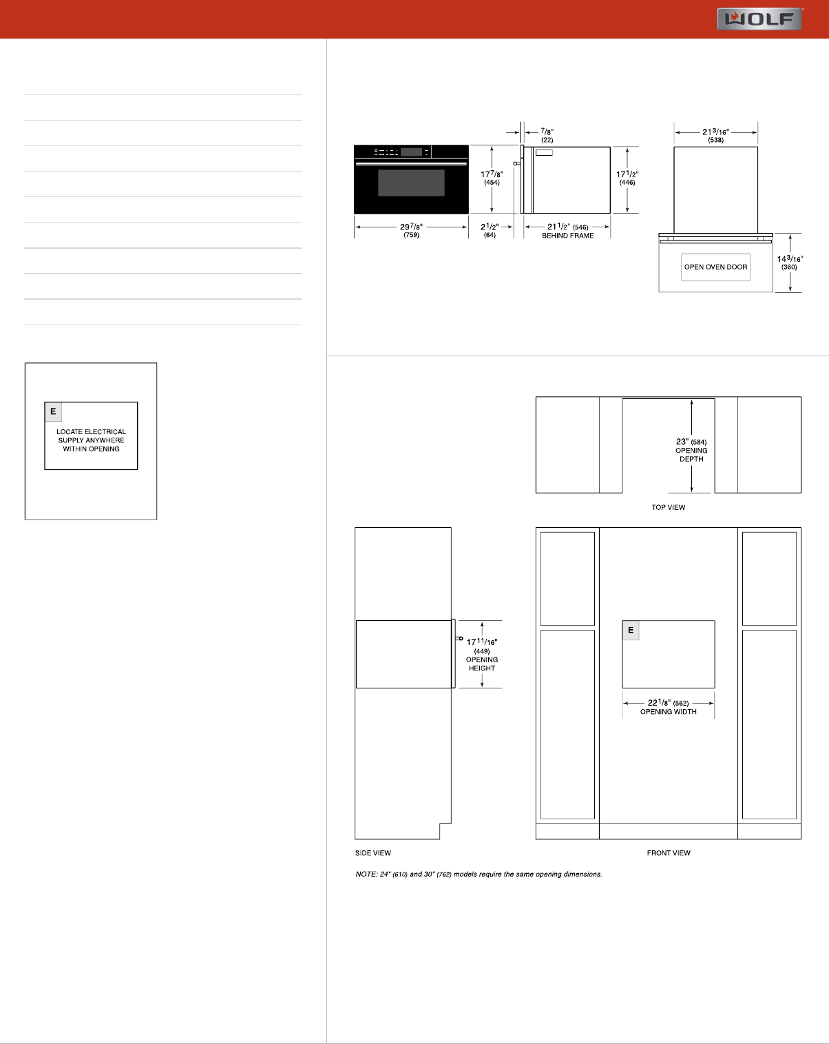
PRODUCT SPECIFICATIONS
Model CSO30CM/B/TH
Dimensions 29 7/8"W x 17 7/8"H x 21 1/2"D
Oven Interior Dimensions 17 7/8"W x 11"H x 15 3/4"D
Capacity 1.8 cu. ft.
Door Clearance 14 3/16"
Weight 80 lbs
Electrical Supply 240/208 VAC, 60 Hz
Electrical Service 20 amp dedicated circuit
Power Cord Length 6 Feet
Receptacle NEMA 6-20R grounding-type
ELECTRICAL
NOTE: Dimensions in parenthesis are in millimeters unless otherwise
specified
DIMENSIONS
STANDARD INSTALLATION
Specifications are subject to change without notice. This information was generated on August 24, 2020. Verify specifications prior to finalizing your cabinetry/enclosures.


