Owner's manual
Manuals
Brands
Wilbur Curtis Manuals
Coffee machines
SHG
1
2
3
4
5
6
7
8
6
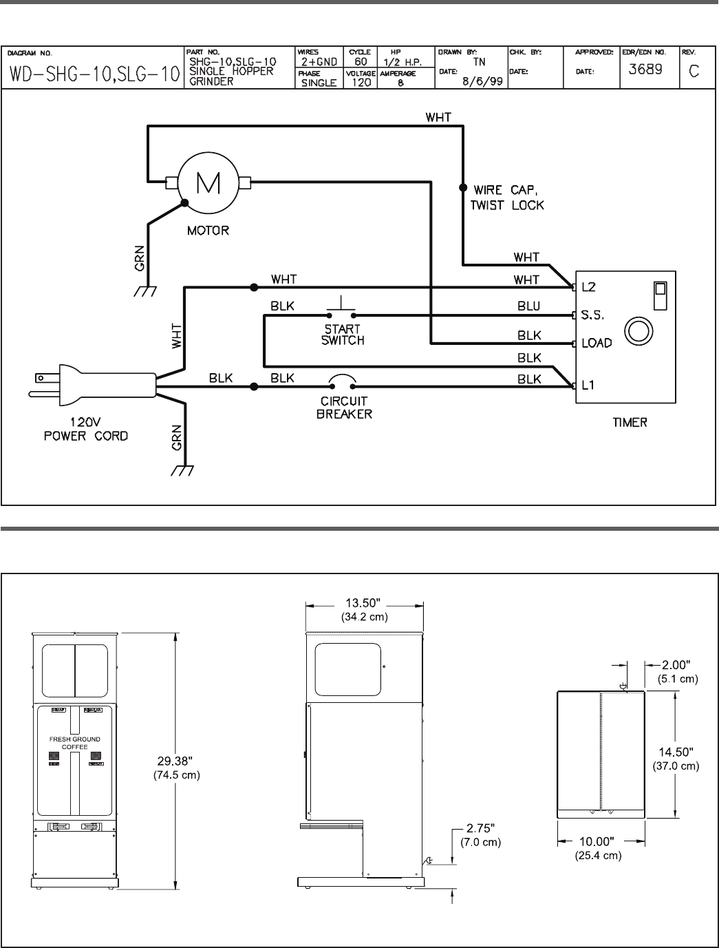
ROUGH-IN DRA
WINGS
DHG
ELECTRICAL SCHEMA
TIC – SHG
1
...
...
4
5
6
7
8