Installation Guide
5 Montage
SMA Solar Technology AG
Instructions d’installationSBxx-1SP-US-40-IA-xx-15182
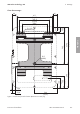
Distances recommandées:
Afin de garantir un fonctionnement optimal, une dissipation adéquate de la chaleur ainsi qu’une
bonne qualité de connexion en cas d’utilisation du SMACellularLTEModemKit, les exigences
suivantes relatives aux distances devraient être respectées. Vous éviterez ainsi que l’onduleur ne
perde de sa puissance en raison d’une température trop élevée. Des distances plus courtes sont
permissibles sans aucun risque.
Distances prescrites par le
National Electrical Code
®
ou le
Canadian Electrical
Code
®
CSA C22.1
Dans certaines cas, le National Electrical Code
®
ou le Canadian Electrical Code
®
CSA
C22.1 prescrivent des distances supérieures.
• Assurez-vous que les distances prescrites dans le National Electrical Code
®
ou le
Canadian Electrical Code
®
CSA C22.1 sont respectées
☐ Vous devez respecter les distances recommandées par rapport aux murs, aux autres
onduleurs et autres objets.
☐ Si plusieurs onduleurs sont montés dans une zone soumise à des températures ambiantes
élevées, les distances entre les onduleurs doivent être augmentées et un apport suffisant d’air
frais doit être assuré.
700
(27,56)
600
(23,62)
550
(21,64)
500
(19,69)
550
(21,64)
Figure 6 : Distances recommandées (Dimensions en mm (in))
FRANÇAIS