Installation Guide

5 Mounting
SMA Solar Technology AG
Installation ManualSBxx-1SP-US-40-IA-xx-1524
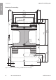
Dimensions for mounting:
365
(14.37)
306
(12.05)
362.4
(14.27)
411
(16.18)
Ø 9
(0.35)
9 x 18
(0.35 x 0.71)
61
(2.40)
32.8
(1.29)
34.4
(1.35)
46
(1.81)
46
(1.81)
140
(5.51)
290
(11.42)
439.6
(17.31)
74.6
(2.94)
266
(10.5)
108
(4.25)
Figure 5 : Position of the anchoring points(Dimensions in mm (in))
ENGLISH