Installation Guide

6 Raccordement électrique
SMA Solar Technology AG
Instructions d’installation SBxx-1SP-US-40-IA-xx-15 187
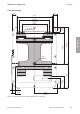
6.1.2 Vue intérieure
COM
DC-in
SPS
AC-out
D-IN
SPS
A B
M1
X1 X2
M2
ANT.
FCC ID: SVF-KP20
IC: 9440A-KP20
Max. 30V DC
DISPLAY
BAT MFR
USB
A
B
C
D F
G
O H
J
P
K
L
M
N
I
E
Q
Figure 8 : Zones de raccordement situées à l’intérieur de l’onduleur
Position Désignation
A
Port DC-in pour le raccordementDC
B
Port du module M1
C
Port du module M2
D
Port ANT. pour le raccordement de l’Antenna Extension Kit (en option)
E
Port AC-out pour le raccordementAC
F
Port SPS pour le raccordement de la prise de courant pour le mode d’ali-
mentation de secours
G Logement prévu pour l’accessoire homologué par SMA Solar Technolo-
gy AG (en option)
H Borne de mise à la terre de l’équipement pour le conducteur de mise à la
terre de l’équipement du réseau électrique public, de la prise de courant
pour le mode d’alimentation de secours, et le cas échéant une mise à la
terre supplémentaire ou pour la liaison équipotentielle
I
Port SPS pour le raccordement de l’interrupteur pour le mode d’alimenta-
tion de secours
J
L’embase D-IN n’est pas occupée
K
Prises réseau A et B pour le raccordement d’un routeur ou d’un commuta-
teur réseau
FRANÇAIS