Owner's manual
Manuals
Brands
Wesley Manuals
Hoist
SCT-7750-8AC
31
32
33
34
35
36
37
38
39
40
Owner’s Manual and Service Guide –
SC & SCT Series
34
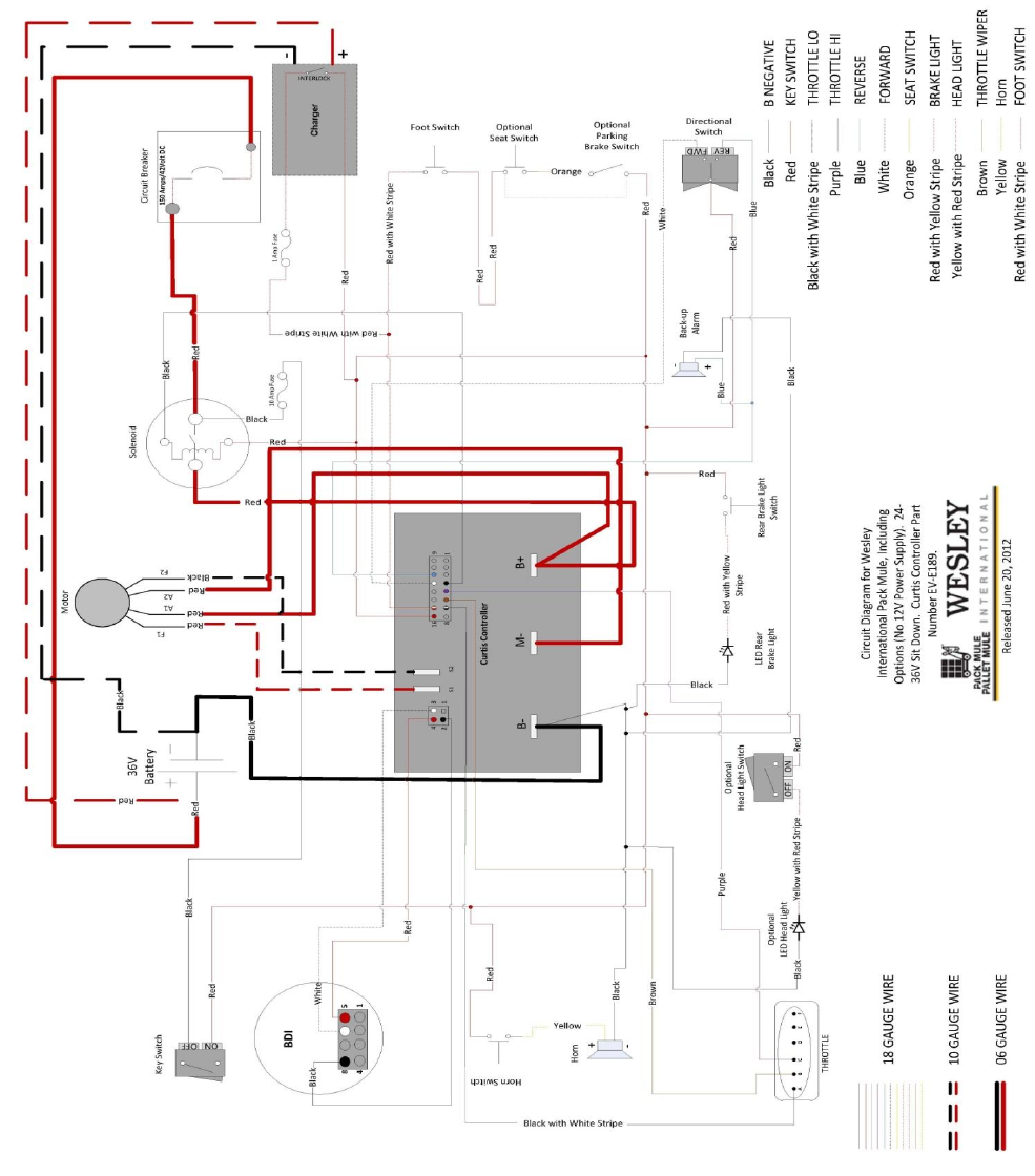
COMPONENTS
–
ELECTRICAL
W
I
R
I
N
G
D
I
A
G
R
A
M
1
...
...
32
33
34
35
36
...
...
44