Instruction Manual

C
L
GABARIT
TEMPLATE
PLANTILLA
2-1/8"
(57mm)
Diameter
Diamètre
Diámetro
1
FOLD LINE
2-3/8" (60mm)
BACKSET
ÉCARTEMENT
DISTANCIA AL CENTRO
5-1/2" (140mm)
2-3/4" (70mm)
BACKSET
ÉCARTEMENT
DISTANCIA AL CENTRO
LIGNE DE PLIER
2
2-1/8"
(57mm)
Diameter
Diamètre
Diámetro
4
2 3/8" (60mm)
2-3/4" (70mm)
LINEA DE DOBLEZ
`
BACKSET
ÉCARTEMENT
DISTANCIA AL CENTRO
BACKSET
ÉCARTEMENT
DISTANCIA AL CENTRO
8-13/32" (214 mm)
2
1
1-3/4"
(44mm)
3
DOOR THICKNESS
ÉPAISSEUR DE LA PORTE
GROSOR DE LA PUERTA
1-3/4"
(44mm)
3
DOOR THICKNESS
ÉPAISSEUR DE LA PORTE
GROSOR DE LA PUERTA
A
a. Percer des trous-pilotes de diamètre 1/8" (3mm) en travers aux emplacements situés à 2-1/8" (54mm) du centre et à l’emplacement marqué pour le bas de la poignée.
Percer des trous-pilotes de diamètre 1/8" (3mm), d’une profondeur de 2" (51 mm) au centre des emplacements marqués sur le bord de la porte. b. Percer chaque trou de diamètre
2-1/8" (54mm) jusqu'au milieu de l'épaisseur de la porte environ, puis finir le perçage de l'autre côté pour éviter l'éclatement du bois. c. Marquer l'emplacement du trou de la gâche
sur le chambranle de la porte en fermant la porte et en poussant un clou ordinaire de 2" (51mm) de l'intérieur du trou de 2-1/8" (54mm) à travers le trou-pilote jusqu'à ce que le clou
fasse une marque sur le chambranle de la porte. (Voir fig. T-2). d. Percer les trous de 1" (25mm) de diamètre dans le bord de la porte. e. Percer les trous de 1" (25mm) de
diamètre dans le chambranle de la porte sur une profondeur minimale de 1" (25mm) pour la gâche de pêne dormant et de 5/8" (16mm) pour la gâche de serrure. f. Pour le bas de
la poignée, percer une trou de diamètre 5/16" (8mm) jusqu’à environ la moitié de l’épaisseur de la porte, puis percer depuis l’autre côté pour éviter tout éclatement du bois.
g. Tracer la têtière des verrous dans le bord de la porte et découper les surfaces avec un ciseau à bois sur une profondeur de 5/32" (4 mm). h. Pour les chambranles en bois,
centrer chaque gâche au-dessus du trou approprié dans le chambranle, tracer l'emplacement. Mortaiser 5/64" (2mm) de profondeur pour gâche supérieur et 1/16" (1,6mm) de
profondeur pour gâche inférieur. i. Marquez les trous pilotes pour des vis: Positionner la gâche supérieur avec de grands trous vers l’arrêt de porte et marquez les centres des
trous de vis. Insérer les verrous dans le bord de la porte, marquer les centres des trous de vis et retirer les verrous. j. Percer les trous pilotes comme suit: Pour les vis de
3/4" (19mm) de long, percer les trous pilotes de diamètre 3/32" (2mm) et d'une profoundeur de 1/2" 13mm). Pour les vis de 1-1/2" (38mm) de long, percer les trous pilotes de diamètre 1/8" (3mm) et d'une profoundeur
de 1-1/2" (38mm). Pour les vis de 3" (76mm) de long, percer les trous pilotes de diamètre 1/8” (3mm) et d'une profoundeur minimale de 2-1/2" (63.5mm). k. Contineur ensuite aux des INSTRUCTIONS
D'INSTALLATION au verso.
C
L
GABARIT
TEMPLATE
PLANTILLA
2-1/8"
(54mm)
Diameter
Diamètre
Diámetro
1
FOLD LINE
2-3/8" (60mm)
BACKSET
ÉCARTEMENT
DISTANCIA AL CENTRO
5-1/2" (140mm)
2-3/4" (70mm)
BACKSET
ÉCARTEMENT
DISTANCIA AL CENTRO
LIGNE DE PLIER
2
2-1/8"
(54mm)
Diameter
Diamètre
Diámetro
4
2-3/8" (60mm)
2-3/4" (70mm)
LINEA DE DOBLEZ
`
BACKSET
ÉCARTEMENT
DISTANCIA AL CENTRO
BACKSET
ÉCARTEMENT
DISTANCIA AL CENTRO
8-13/32" (214 mm)
2
1
A
1-3/4"
(44mm)
3
DOOR THICKNESS
ÉPAISSEUR DE LA PORTE
GROSOR DE LA PUERTA
1-3/4"
(44mm)
3
DOOR THICKNESS
ÉPAISSEUR DE LA PORTE
GROSOR DE LA PUERTA
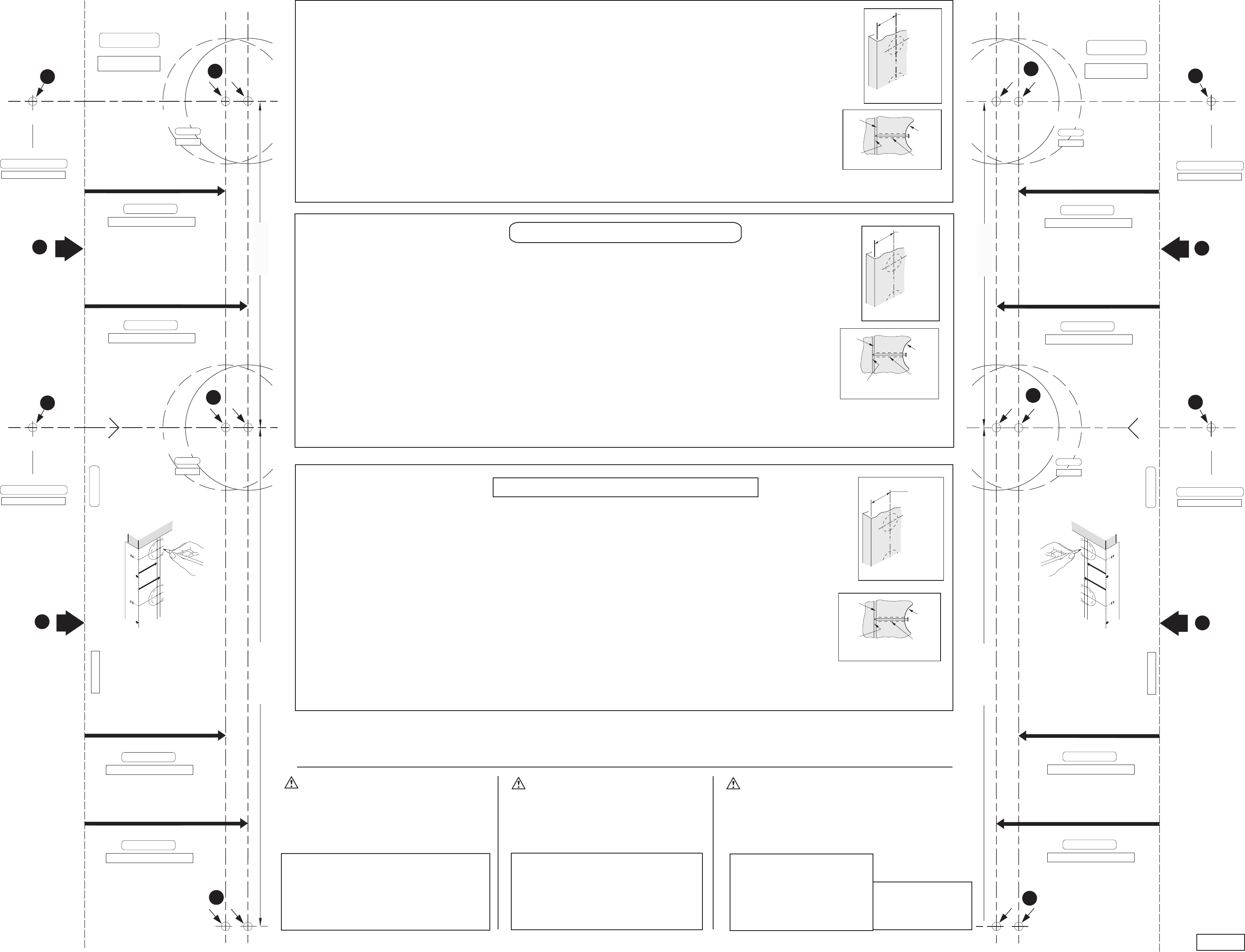
a. Drill 1/8” (3mm) diameter pilot holes through door at the 2-1/8” (54mm) center locations and at the location marked for bottom of handle. Drill 1/8” (3mm) diameter pilot holes 2”
(51mm) deep at center of locations marked on door edge. b. Drill the 2-1/8” (54mm) diameter holes about half way through door, then finish drilling from other side to prevent
splintering. c. Mark location for strike plate holes in door jamb by closing door and pressing a 2” (51mm) common nail from inside 2-1/8” (54mm) hole through pilot hole until nail
makes indentation in door jamb. (See fig. T-2). d. Drill 1” diameter holes in door edge. e. Drill 1” (25mm) diameter holes in door jamb, drill hole a minimum of 1” (25mm) deep for
deadbolt strike and 5/8” (16mm) deep for handleset strike. f. For the bottom of handle, drill a 5/16” (8mm) diameter hole about half way through door, then finish drilling from other
side to prevent splintering. g. Trace face of latches in door edge and chisel out areas 5/32” (4mm) deep. No chiseling is required for round face (drive in) latches. h. For wood
jamb, center each strike over appropriate hole in jamb and trace outline. Chisel out area 5/64” (2mm) deep for deadbolt strike and 1/16” (1.6mm) deep for handleset strike. i. Mark
pilot holes for screws: Place deadbolt strike on jamb with large screw holes towards door stop and mark the screw hole centers. Insert latches in door edge, mark screw hole centers
and remove latches. j. Drill the pilot screw holes as follows: For screws 3/4” (19mm) in length, drill 3/32” (2mm) diameter pilot holes 1/2” (13mm) deep. For screws 1-1/2 (38mm) in
length, drill 1/8” (3mm) diameter pilot holes, a minimum of 1-1/2” deep. For screws 3” (76mm) in length, drill 1/8” (3mm) diameter pilot holes, a minimum of 2-1/2” deep. k. Continue
by following INSTALLATION INSTRUCTIONS on reverse side.
1. Fold on door edge with centerline "A" approximately 38" from floor.
2. Mark appropriate centers for the 2-1/8" (54mm) diameter holes. Important, select desired backset before marking centers (see figure T-1).
3. Mark appropriate centers for 1" diameter holes in door edge.
4. Mark screw hole center for bottom of handle. Once locations are marked, continue with steps a through k below.
ENGLISH DRILLING INSTRUCTIONS.
Using template, mark drilling locations on door by following steps 1 — 4.
1. Plier sur le bord de la porte avec l'axe "A" à environ 38" (965mm) du sol
2. Marquer les centres des trous de 2-1/8" (54mm). Il est important de sélectionner le écartement souhaitée avant de marquer les centres (voir figure T-1).
3. Marquer les centres des trous de diamètre 1" (25mm) dans le bord de la porte.
4. Marquer le centre du trou de vis pour le bas de la poignée. Une fois les emplacement marqués, passer aux étapes a à k ci-dessous.
Avec le gabarit, marquer l'emplacement des trous sur la porte en suivant les étapes 1 — 4.
1. Doble la plantilla en el borde de la puerta con la línea central "A" aproximadamente 38" (965mm) sobre el piso.
2. Marque los centros apropiados para los orificios de 2-1/8" (54mm) de diámetro. Importante, seleccione la distancia al centro deseada antes de marcar
los centros (ver figura T-1).
3. Marque apropiadamente el centro para los orificios de 1” de diámetro en el borde de la puerta.
4. Marque el centro del orificio para el tornillo de la parte inferior de la manilla. Después de haber marcado el centro de los orificios, continue con los
pasos de a a k mostrados abajo
INSTRUCCIONES DE PERFORACIÓN EN ESPAÑOL
Usando la plantilla, marque los lugares de perforación en la puerta siguiendo los pasos del 1 al 4.
Figura T-1.
2-3/8"
Ó
2-3/4"
DISTANCIA
AL CENTRO
Figure T-1.
2-3/8" OU
2-3/4"
ÉCARTEMENT
Figure T-1.
2-3/8" OR
2-3/4"
BACKSET
Figure T-1.
Door
2-1/8”
(54mm)
Diameter
Pilot Hole
Jamb
Figure T-1.
Porte
2-1/8”
(54mm)
Diamètre
Trou-pilote
Chambranle
a. Perfore orificios guía de 1/8" (3mm) de diámetro, a través de la puerta en el centro de los orificios de 2-1/8" (54mm) de diámetro y en el borde de la puerta a una profundidad de
2" (51mm). b. Perfore los orificios de 2-1/8" 54mm) de diámetro hasta la mitad de la puerta, luego termine de perforarlos por el otro lado para evitar astilladuras. c. Marque la
posición de los orificios de los recibidores en el marco de la puerta, cerrando la puerta e insertando un clavo común de 2" (51mm), desde la parte interior del orificio de 2-1/8"
54mm) a través del orificio guía hasta que el clavo haga una marca en el marco de la puerta. (Ver fig. T-2). d. Perfore orificios de 1" (25mm) de diámetro en el borde de la puerta.
e. Perfore orificios de 1" (25mm) de diámetro en el marco de la puerta a una profundidad mínima de 1" (25mm) para recibidor de cerrojo y a una profundidad de 5/8" (16mm) para
recibidor de manilla. f. Para la parte inferior de la manilla, perfore un orificio de 5/16” (8mm) de diámetro hasta la mitad de la puerta, luego termine de perforarlo por el otro lado
de la puerta para evitar astilladuras. g. Trace el contorno de las placas de los pasadores sobre el borde de la puerta y rebaje las áreas a una profundidad de 5/32" (4mm). No es
necesario rebajar el borde para pasadores redondos (de inserción). h. Para marcos de madera, centre cada recibidor sobre el orificio correspondiente del marco, trace el contorno
y rebaje áreas de 1/16” (1.6 mm) de profundidad para el recibidor inferior y 5/64” (2 mm) de profundidad para el recibidor superior. i. Marque los agujeros de la guía para los
tornillos: Coloque el recibidor superior con los agujeros grandes hacia la parada de puerta y marque los centros de los agujeros del tornillo. Inserte los pasadores en el borde de la
puerta, marque los centros de los orificios para los tornillos y extraiga los pasadores. j. Taladre los orificios para los tornillos de la siguiente forma: Para los tornillos de 19 mm (3/4”) de largo, taladre guías para los
orificios de 2mm (3/32”) de diámetro, de 13mm (1/2” ) de profundidad. Para los tornillos de 38 mm (1-1/2”) de largo, taladre guías para los orificios de 3mm (1/8”) de diámetro, de 38 mm (1-1/2”) de profundidad.
Para los tornillos de 76mm (3”) de largo, taladre guías para los orificios de 3mm (1/8”) de diámetro, de 63.5mm (2-1/2”) de profundidad. k. Prosiga con los pasos de las Instrucciones de instalación al reverso.
Figura T-1.
Puerta
2-1/8”
(54mm)
Diámetro
Orificio
guía
Marco
AVERTISSEMENT: Le fabricant tient à vous aviser qu'aucun verrou ne
peut à lui seul offrir une sécurité complète. Ce verrou peut être mis hors d'état par
la force ou des moyens techniques ou être évité par l’utilisation d’une autre entrée
sur la propriété. Aucun verrou ne peut remplacer la surveillance de votre
environnement et le bon sens. La quincaillerie pour le constructeur est offerte
selon différents grades de performance pour différentes applications. Afin
d'augmenter la sécurité et de réduire le risque, vous devriez consulter un serrurier
qualifié ou un autre professionnel de la sécurité.
ADVERTENCIA: Este Fabricante hace saber que no hay cerrojos
que puedan proporcionar completa seguridad por sí mismos. Puede
hacerse que falle este cerrojo forzándolo o utilizando medios técnicos, o
puede evadirse entrando por otra parte de la propiedad. No hay cerrojos
que puedan hacer de sustitutos para la precaución, el estar al tanto del
entorno, y el sentido común. Pueden obtenerse piezas de ferretería de
constructor con diversos grados de rendimiento para ajustarse a la
aplicación. Para realzar la seguridad y reducir los riesgos, debe consultar
con un cerrajero capacitado u otro profesional de seguridad
WARNING: This Manufacturer advises that no lock can provide complete
security by itself. This lock may be defeated by forcible or technical means, or
evaded by entry elsewhere on the property. No lock can substitute for caution,
awareness of your environment, and common sense. Builder’s hardware is
available in multiple performance grades to suit the application. In order to
enhance security and reduce risk, you should consult a qualified locksmith or
other security professional.
This product is covered by one or more of the following patents or patents pending: 5123683 5317889 5335525 5335950 5441318 5452928 5482335 5490700 5496082 5513509 5513510 5529351 5540070 5570912 5662365 5761937 5810402 5816629 5857365 6058746 6128933 6151934
6398465 6401932 6412319 6443504 6532629 6536812 6568727 6598440 6662606 6695365 6702340 6745602 6828519 6860131 6860529 6862909 6871520 6880871 6948748 6951123 6959569 6971513 6973813 7007528 7100408 7104098 7114357 7117701 7152891 7156432 7162901
7213429 7234331 7308811 RE38693 D344011 D347564 D348602 D348821 D352888 D361488 D361489 D361706 D363872 D373063 D373523 D400777 D407292 D431443 D435423 D436933 D437216 D437771 D443194 D443808 D446122 D447927 D452131 D453897 D453898 D453899
D454049 D458839 D461700 D463968 D464565 D464877 D465989 D468636 D472794 D473780 D514921 D524630 D525512 D525516 D540140 D540147 D541621 D542115 D545169 D547830
For assistance or warranty
information: Call
1-800-677-5625 USA
1-800-501-9471 CANADA
or visit www.weiserlock.com
Pour de l’aide ou des informations sur
la garantie, veuillez appeler le
1-800-677-5625 USA
1-800-501-9471 CANADA
ou visiter www.weiserlock.com
Si desea ayuda o información
sobre la garantía, llame al
1-800-677-5625 USA
1-800-501-9471 CANADA
o visite www.weiserlock.com
INSTRUCTION DE PERÇAGE EN FRANÇAIS
40496 /01
Importador:
Black & Decker S.A. de C.V.
Bosques de Cidros Acceso Radiatas #42
Col. Bosques de Las Lomas
CP 05120 Mexico, D.F.
Tel.: 55-5326-7100


