Tender specification

I
20.02.2018, page 2/4 I
Specification Text - Enclosure, Stainless steel
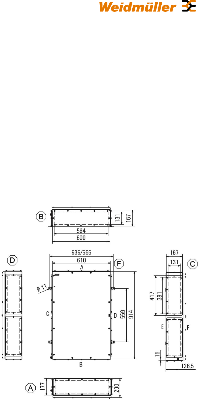
Sizes: 229 mm x 152 mm x 133 mm … 980 mm x 740 mm x 200 mm (Hight x Width x Depth)
Klippon TB MH 916120 S4E2 1195570000 914 mm x 610 mm x 200 mm
Sealing for lid
and gland plates: Single (fully complete) silicon gasket with compression control. Flat (10
mm) seal design around the complete aperture of the enclosure so as to
eliminate knife-edge contact and prevent damage to the sealing gasket.
Gland plates: Top, bottom. Stainless steel V4A / 316L / 1.4404, electropolished.
Material thickness 3 mm. Fixing screws (SW 10) with fully welded captive
sockets with internal thread on the enclosure base.
Earth bolt: Internal / External: 1x M10, brass, with rotation prevention; Internal: 1x M6
on the enclosure base, 1x M6 on the lid, V4A / 316L / 1.4404, welded.
Enclosure attachment: 4 mounting feet with 11 mm hole size, welded to the enclosure base. 2 of
them are sloted.
Ambient temperatures: -60 °C ≤ Tamb ≤ +135 °C (IEC60079-0), including aging cycles
Impact resistance: 7 J - IEC 60079-0 / IK 09 (10 J) - DIN EN 50102
Traceability: The article description and the article number are laser marked on to the
lid and enclosure base. By this marking lid and enclosure base are
assigned.
Klippon TB MH 916120,
gland plates left, right, top,
bottom




