Tender specification

I
20.02.2018, Seite 2/4 I
Ausschreibungstext - Gehäuse, Edelstahl
Größen: 229 mm x 152 mm x 133 mm … 980 mm x 740 mm x 200 mm (Höhe x Breite x Tiefe)
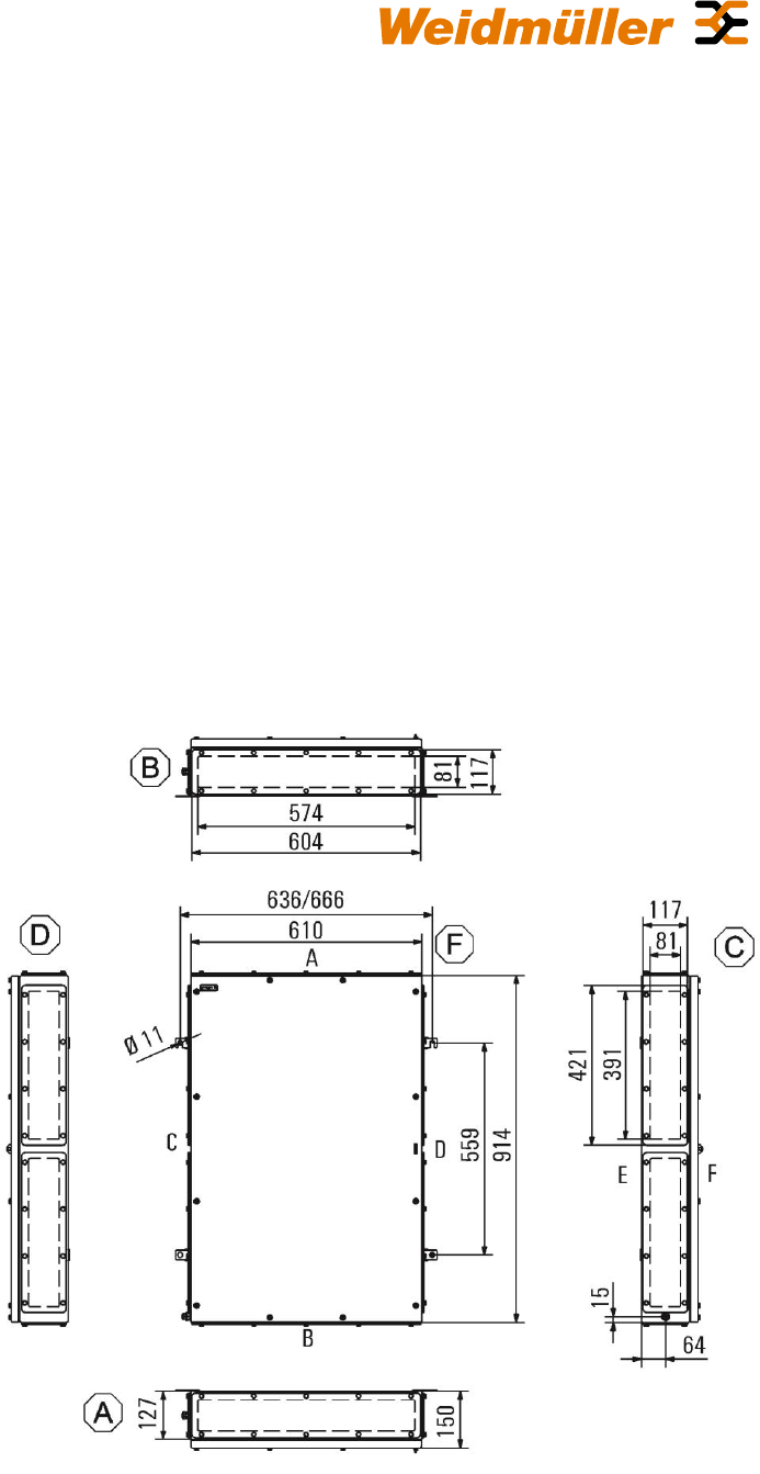
Klippon TB MH 916115 S4E0 1195500000 914 mm x 610 mm x 150 mm
Dichtung für Deckel
und Flanschplatten: Einteilige (nicht geschnittene) Silikondichtung mit Kompressionsschutz,
zur Erhaltung der Schutzklasse. Ebene Auflagefläche mindestens 10 mm
breit, zur Vermeidung einer Beschädigung durch scharfe Kanten.
Flanschplatten: Ohne
Erdbolzen: Innen / Außen: 1x M10, Messing, verdrehsicher; Innen: 1x M6 am
Unterteil; 1x M6 am Deckel, V4A / 316L / 1.4404, geschweißt.
Gehäusebefestigung: 4 Montagefüße mit 11 mm Lochgröße, 2 davon geschlitzt, angeschweißt
am Gehäuseunterteil.
Umgebungstemperatur: -60 °C ≤ Tamb ≤ +135 °C (IEC60079-0), inklusive Alterungszyklen
Schlagfestigkeit: 7 J - IEC 60079-0 / IK 09 (10 J) - DIN EN 50102
Rückverfolgbarkeit: Gehäusebezeichnung und Artikelnummer sind in Deckel und
Gehäuseunterteil gelasert. Durch diese Kennzeichnung sind Deckel und
Gehäuseunterteil gepaart.
Klippon TB MH 916115,
Flanschplatten links,
rechts, oben, unten




