User's Manual

9
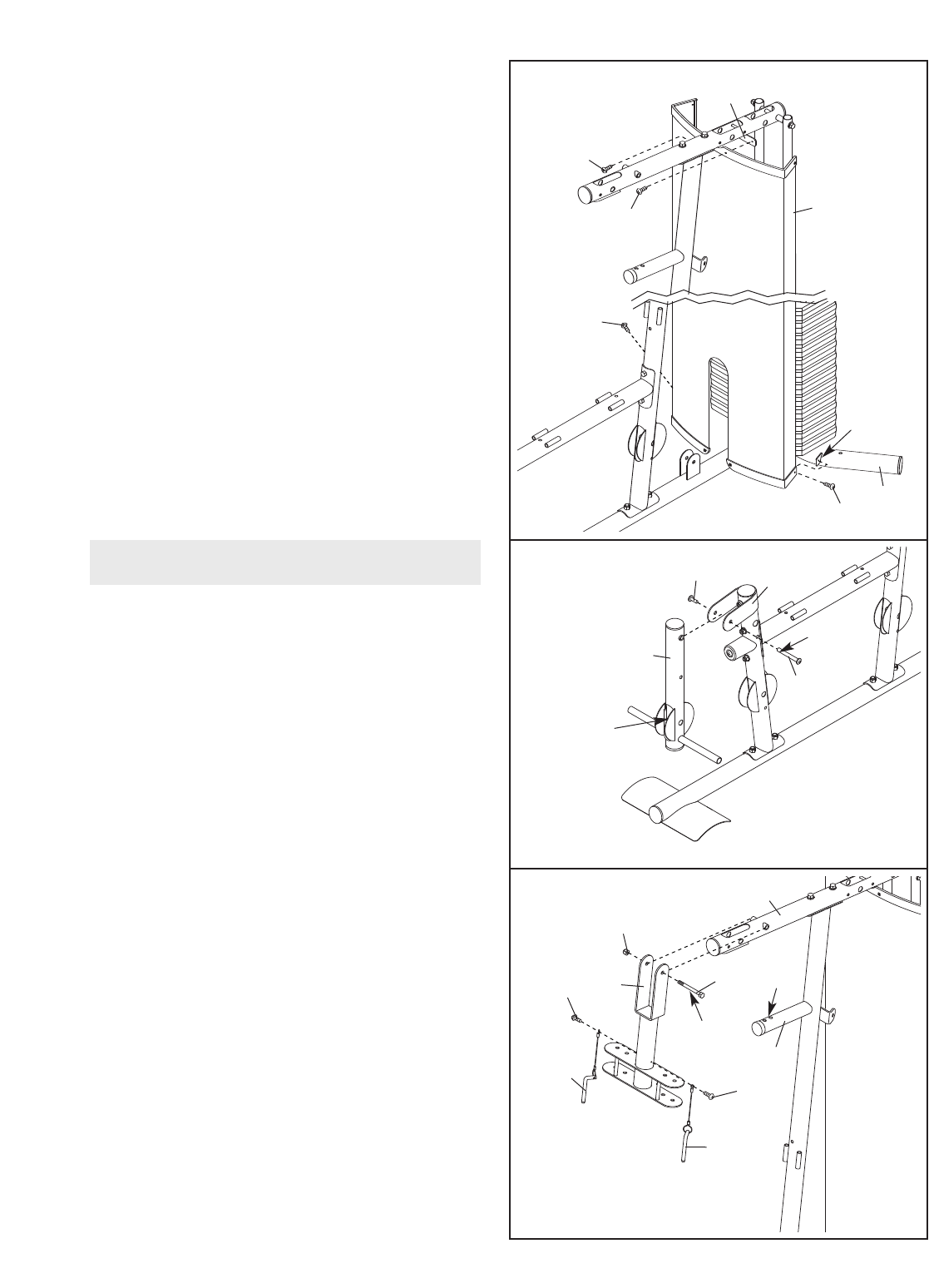
8. Montare la Cappa (17) al Telaio Superiore (4)
con due Viti da M4 x 16mm (86).
Montare la Cappa (17) alle staffe dello
S
tabilizzatore (2) con due Viti da M4 x 16mm
(86). Verificare che le staffe siano all'interno
della Cappa.
Avvitare i Dadi Autobloccanti in Nylon (56,
58) utilizzati nelle fasi 2 a 6.
9. Lubrificare il Set Bullone da M10 x 80mm (3).
Orientare la Leva Gamba (8) verso il supporto
saldato come indicato. Montare la Leva Gamba
alla Gamba Anteriore (7) con il Set Bullone.
Non stringere troppo il Set Bullone; la Leva
Gamba deve potersi muovere facilmente.
10.
Lubrificare il Bullone a Testa Bombata da M10 x
90mm (67). Montare il Perno T
elaio (5) al
T
elaio
Superiore (4) con il Bullone a Testa Bombata e
un Dado Autobloccante in Nylon da M10 (56).
Non serrare eccessivamente il Dado
Autobloccante; il Perno Telaio deve poter
ruotare facilmente.
Montare i Perni del Braccio (40) al Perno
T
elaio
(5) con due Viti da M4 x 16mm (86). Inserire i
Perni del Braccio nei due fori sul Montante (3).
8
9
10
8
6
86
17
4
86
86
Sostegno
2
73
73
Lubrificare
Supporto
Saldato
7
8
Lubrificare
Fori
5
56
67
86
86
3
40
40
4
Montaggio Braccio










