User manual

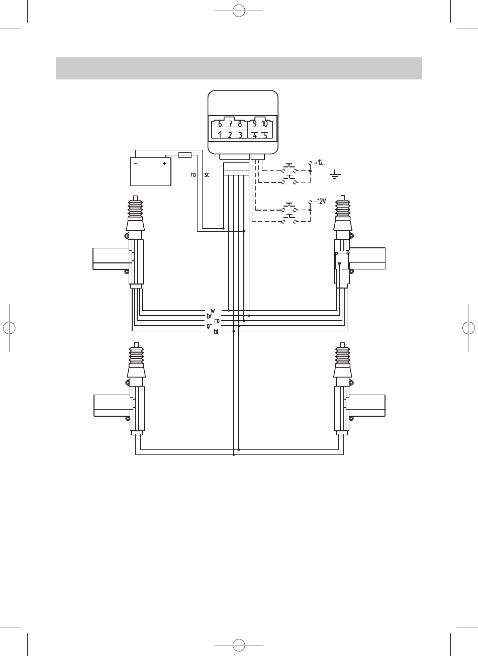
Masse
GND
Anschlüsse Steuerrelais
1 = +12 V – rot
2 = Steuerleitung ZV „zu“ – braun
3 = Motorleitung ZV „auf“ – blau
4 = Ext. Steuerung +12 V = ZV „auf“
5 = Ext. Steuerung -12 V = ZV „auf“
6 = -12 V – schwarz
7 = Steuerleitung ZV „auf“ – weiß
8 = Motorleitung ZV „zu“ – grün
9 = Ext. Steuerung +12 V = ZV „zu“
10 = Ext. Steuerung -12 V = ZV „zu“
-12 V
Schaltplan
bl = blau
gr = grün
br = braun
w = weiß
sc = schwarz
ro = rot
8
manual ml-22/44 29.06.2004 8:32 Uhr Seite 8










