User manual

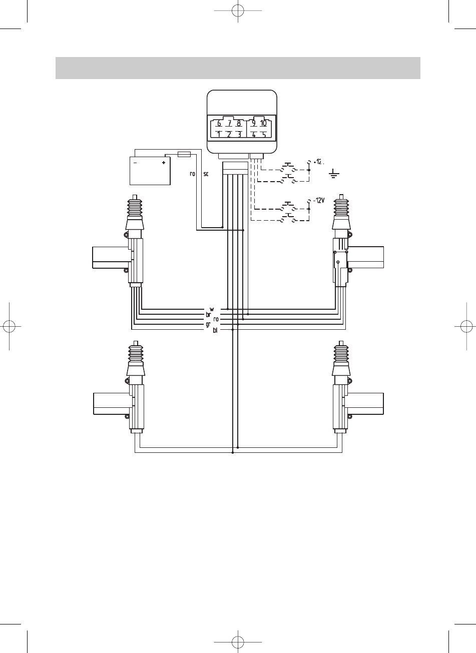
Masse
GND
Electrical connection external control
1 = +12 V – red
2 = control cable CL ”close” – brown
3 = motor cable CL ”open” – blue
4 = exeternal control +12 V = ZV ”open”
5 = exeternal control GND (-) = ZV ”open”
6 = GND – black
7 = control cable CL ”close” – withe
8 = motor cable CL ”close” – green
9 = exeternal control +12 V = ZV ”close”
10 = exeternal control GND (-) = ZV ”close”
-12 V
Wiring diagram
bl = blue
gr = gree
br = brown
w = white
sc = black
ro = red
16
manual ml-22/44 29.06.2004 8:32 Uhr Seite 18










