User manual
Table Of Contents

Fonctionnement PS 2 500 / PS 2 750 / PSA 2 500
24 wc_tx001986fr.fm
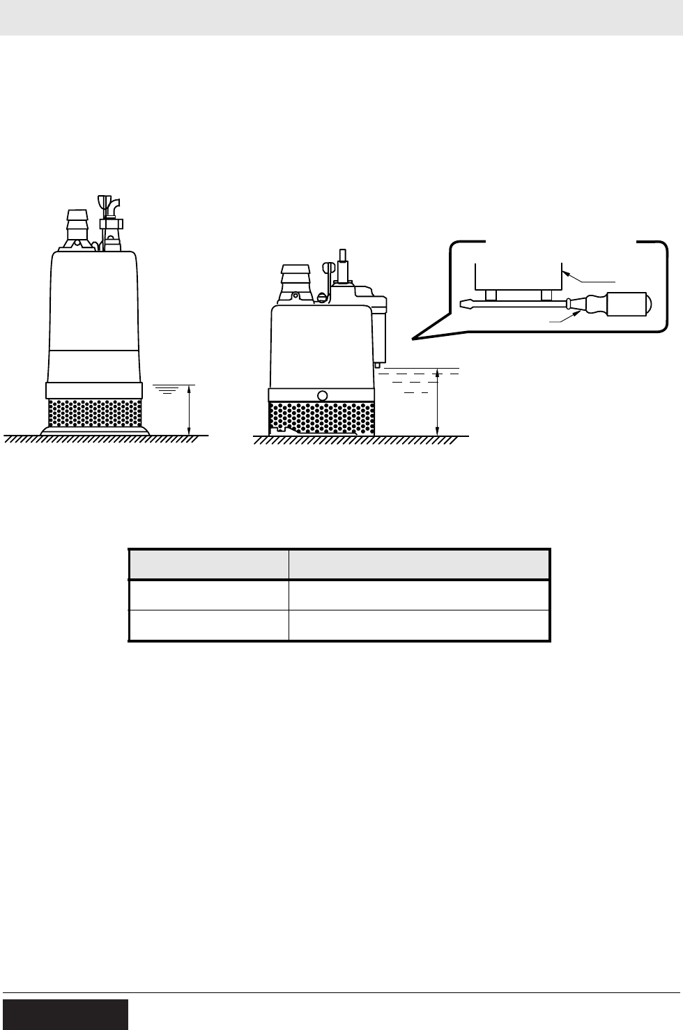
4.2 Niveau d’eau d’exploitation
Ne pas utiliser la pompe lorsque le niveau d’eau courante continu
(C.W.L.) est plus bas que le niveau indiqué ci-dessous. Respecter
cette mise en garde sous peine d’endommager la pompe ou de
provoquer une dispersion ou une décharge électrique.
Voir dessin: wc_gr001225
Niveau d’eau D’Exploitation (PS 2 500, PS 2 500, PS 2 750)
Niveau d’eau d’exploitation (PSA2 500)
Démarrage de la pompe:
Cette pompe s’active grâce au courant entre les électrodes sur le
relais contrôleur de niveau (détecté par l’eau).
Remarque: Le niveau d’eau nécessaire au fonctionnement de la
pompe est de 115 mm à partir du fond de la pompe. Pour forcer le
démarrage de la pompe pour un test de fonctionnement, court-circuiter
les électrodes (a) avec un tournevis (b), comme illustré ci-dessus.
Garder à l’écart tout objet susceptible de boucher la pompe (fils, clous,
cordons, etc.).
Modèle de pompe C.W.L.
PS 2 500 50mm
PS 2 750 100mm
ATTENTION
C.W.L
PS 2 500, PS 2 750
115 mm (4-1/2")
a
b
wc
_
gr001225
PSA 2 500