Operator`s manual

Table Of Contents
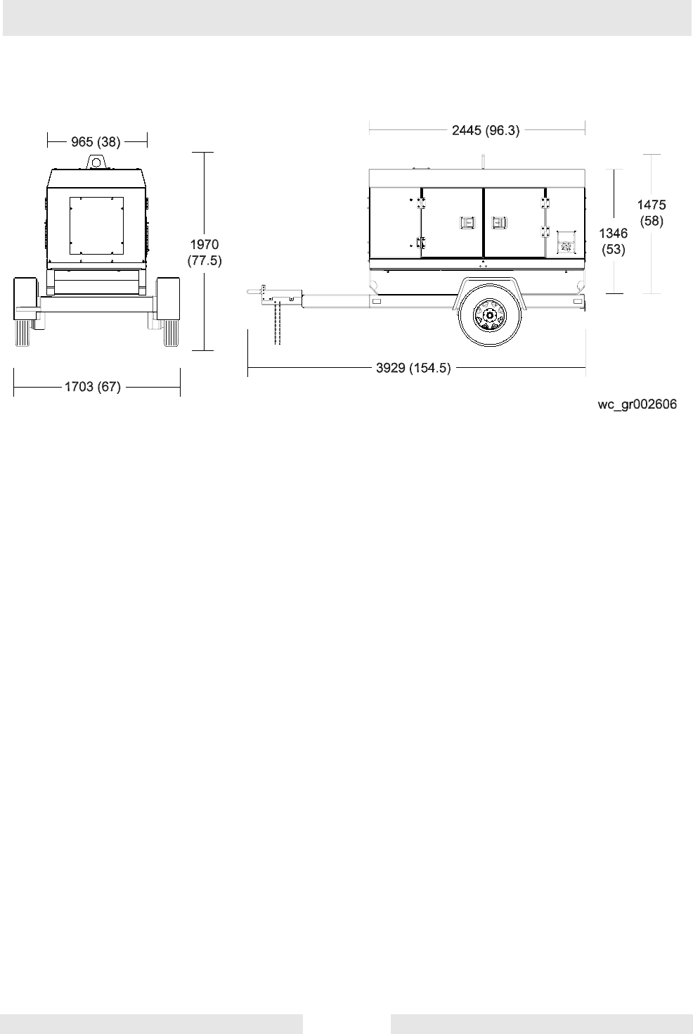
Technical Data G50 /G 70/G 85
90
6.4 Dimensions
mm (inches)