- Vulcan Gas Restaurant Range Specification Sheet

F-37378 (07/08)
A pressure regulator sized for this unit is included. 1.
Natural gas 5.0” W.C., propane gas 10.0” W.C.
Gas line connecting to range must be 1” or larger. If 2.
exible connectors are used, the inside diameter must be
1” or larger.
An adequate ventilation system is required for commercial 3.
cooking equipment. Information may be obtained by
writing to the National Fire Protection Association,
1 Batterymarch Park, Quincy, MA 02269, www.NFPA.org.
When writing, refer to NFPA No. 96.
These units are manufactured for installation in 4.
accordance with ANSZ223.1A (latest edition), National
Fuel Gas Code. Copies may be obtained from The
American Gas Association, 400 N Capitol St. NW,
Washington, DC 20001, www.AGA.org.
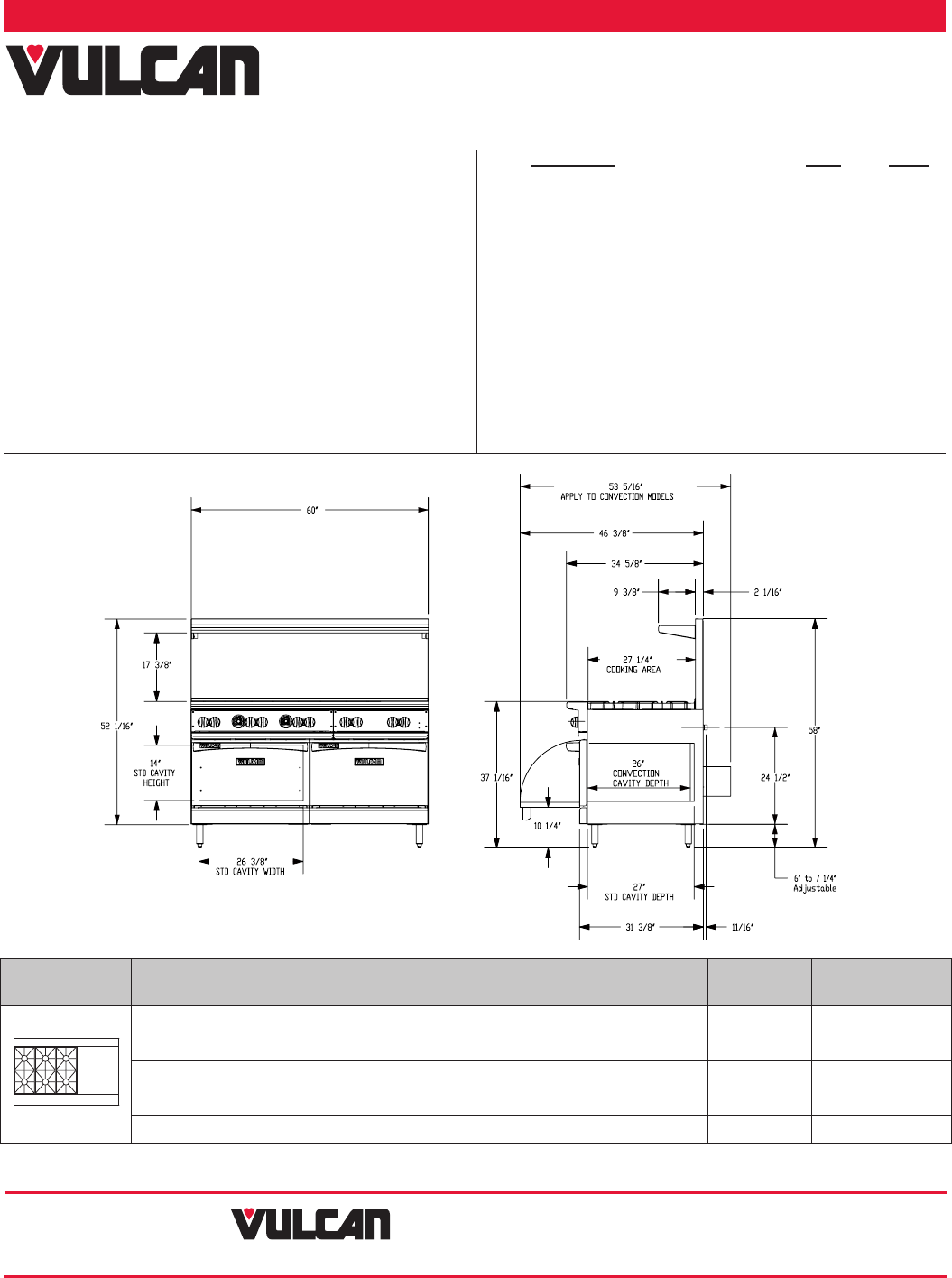
Clearances5. Rear Sides
Combustible 6” 10”
Standard Oven Non-combustible 0” 0”
Convection Oven Non-combustible Min. 4” 0”
For proper combustion, install equipment on adjustable 6.
legs or casters provided with unit.
For proper combustion, install equipment on adjustable 7.
legs or casters provided with unit.
NOTE: In line with its policy to continually improve its product,
Vulcan reserves the right to change materials and specications
without notice.
Specify type of gas when ordering. Specify altitude when
above 2,000 feet.
INSTALLATION INSTRUCTIONS
TOP
CONFIGURATION
MODEL
NUMBER
DESCRIPTION
TOTAL INPUT
BTU / HR
SHIPPING WEIGHT
LBS / KG
G60SS-6FT24 6 Burners / 24” Griddle / 2 Standard Ovens 302,000 990 / 499
G60CC-6FT24 6 Burners / 24” Griddle / 2 Convection Ovens 302,000 1110 / 503
G60SC-6FT24 6 Burners / 24” Griddle / 1 Standard Oven / 1 Convection Oven 302,000 1050 / 476
G60SB-6FT24 6 Burners / 24” Griddle / 1 Standard Oven / Storage Base (right side) 267,000 960 / 435
G60CB-6FT24 6 Burners / 24” Griddle / 1 Convection Oven / Storage Base (right side) 267,000 1020 / 508
Vulcan & Wolf Range
a division of ITW Food Equipment Group LLC
P.O. Box 696
n
Louisville, KY 40201
n
Toll-free: 1-800-814-2028
n
Local: 502-778-2791
n
Quote & Order Fax: 1-800-444-0602
This appliance is manufactured for commercial use only and is not intended for home use.
60” GAS RESTAURANT RANGE
6 OPEN BURNERS / GRIDDLES
VULCAN ENDURANCE
™
SERIES


