Clock User Manual

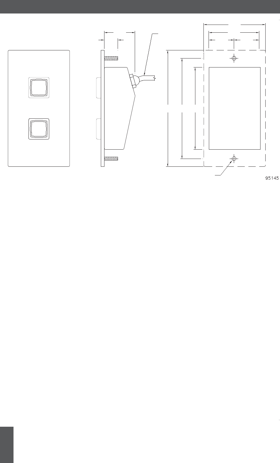
START - STOP
M3 clearance hole
HOLD - RESET
102.0 72.088.0
to clock
12.0
22.0 22.0
3 core cable
27.0
54.0
44.0
496A
Switch Control Unit Details
Panel
cut-out
The 496A Stopwatch Controller unit enables a 401A, 420A or 490A series clock to be used as a stopwatch.
The clock may be programmed to display either :
• Hours, minutes and seconds (hours and minutes for 420A series clocks) - program function 7,
selection 1.
• Minutes, seconds and
1
/
100
th seconds (minutes and seconds for 420A series clocks) - program
function 7, selection 2.
Two switches control the stopwatch count, display hold and reset operations. The different methods of
operation of these switches are illustrated on the following page.
When a minutes, seconds and
1
/
100
th second display is selected and the display is following the running time
the
1
/
100
th second character is blanked as it is impossible to read. When the display is held or stopped the
1
/
100
th second character appears.
The 496A Stopwatch controller is connected to the 401A, 420A or 490A clock by means of the three metre
long, four core cable provided. The interconnecting cable may be extended to ten metres length using a
screen cable. Please refer to pages 24 and 28 for details of connections to the clock.
18
496A Stopwatch Controller - 1
Issue 2.2










