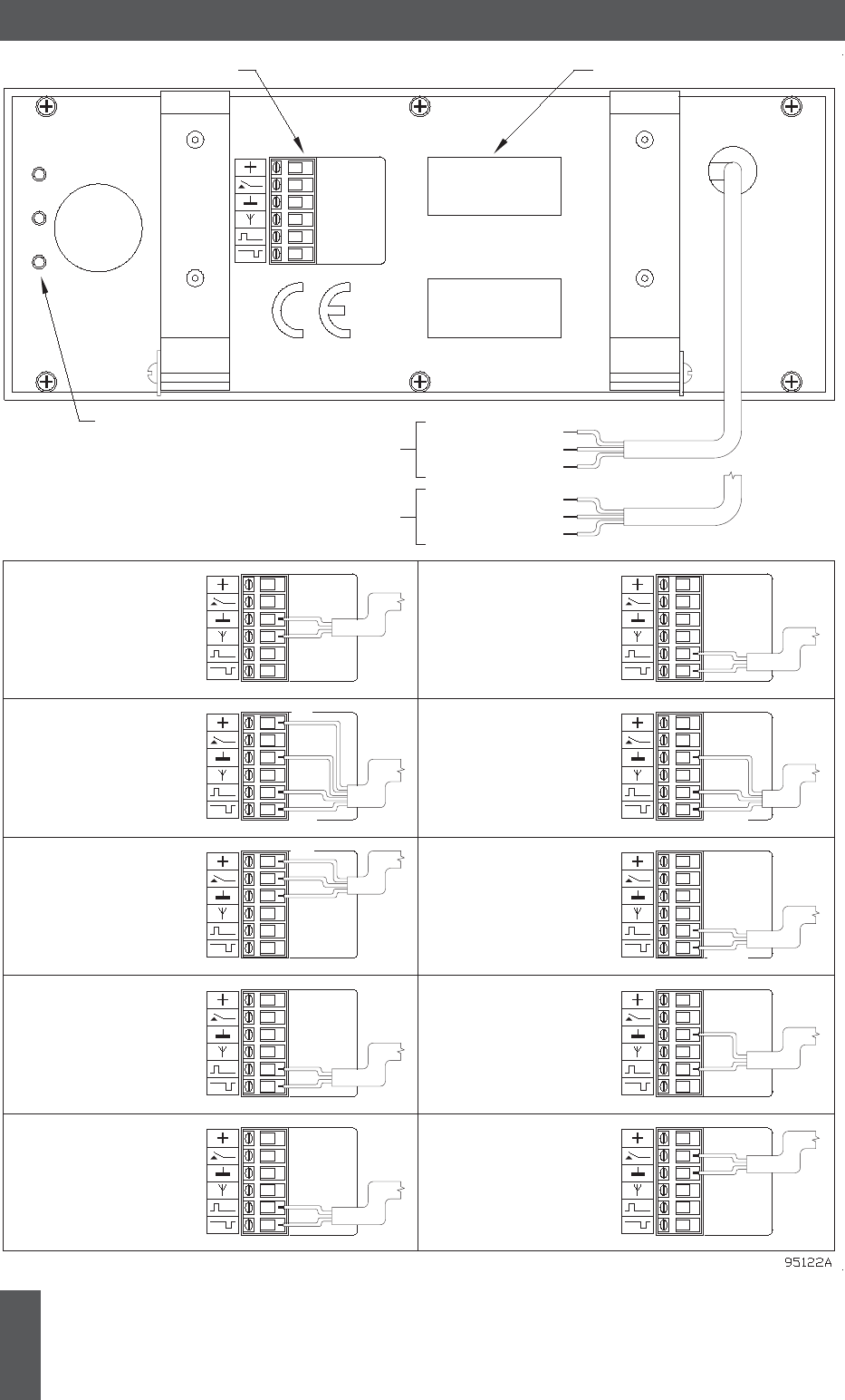
User's Manual

A
B
C
230 VOLTS
AC
WARNING
ISOLATE MAINS
BEFORE REMOVING
COVER
Brown
Blue
Green & Yellow
- Live
- Neutral
- Earth
110 or 230V AC Power Supply Connection Cable
Supply Voltage LabelExternal Interface Connector
Time, Date & Program Setting Switches
12, 24 or 48V DC Power Supply Connection Cable
- 0V dc
Green
Blue
Red
+12, 24 or 48V dc
- Earth
484 Series DCF or MSF
Radio Time Code Receiver
496A Stopwatch Controller
402A Up/Down Stopwatch
Controller
Alternate Polarity 12-24v
impulses*
W482 Time Code*
IRIG-B Time Code
Afnor NF S 87-500 Time Code
EBU/SMPTE Time Code
ML time code
RS232 Serial ASCII
RS485 Serial ASCII
Local Master Operation
H310 Time Code*
Requires 404.I internal interface
Requires 404.E internal interface
Requires 404.2 internal interface
Requires 404.4 internal interface
uncovered
Red or clear
is not critical
polarity
Connector
is not critical
polarity
Connector
series ’Local Slave Clocks’
For control up to ten off 400
Requires 404.M internal interface
Green
Red
Green
Red
Red
Blue
Black
Yellow
Red
Green
Ground
TX data
RX data
Data - A
Data -B
Blue
RS232 ’switch trigger’
Uni-polar 12-24v impulses
’A’ = common, ’B’ = pulse
’A’
’B’
* = Connector
polarity
is not critical
’Local Slave’ Mode*
406 Temperature Sensor
Green or
External Interface Connections
28
Issue 2.2










