Technical data sheet
Manuals
Brands
Villeroy & Boch Manuals
Bath & Sanitary
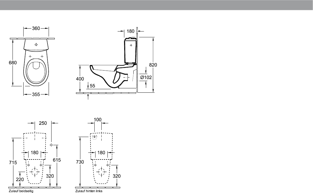
O.novo wall-mounted WC for combination
1
2
2
TECHNISCHE ZEICHNUNGEN
662310
1
2