900 CFM Exterior-Power Ventilator Kit - Installation Instructions

2
11" dia.
hole
7¼ "
1¼"
dia. hole
9
1
/
8
"
10 ¾"
24 ¾"
28 ¼"
Wal l St ud
12
7
/
8
"
Wal l St ud
REMOVE
SIDING
8½ "
Pilot
Hole
Pilot
Hole
OUTSIDE - WALL VIEW
1. Locate the ventilator on the rear slope of the roof.
Place it in a location to minimize duct run. The
location should be free of obstacles (T.V. leads,
electrical lines, etc.). Bear in mind, if the ventilator
top is level with the roof peak, it will not be seen
from the street. Keep this approximate location in
mind as you work from within the attic.
1. Choose a position on the outside wall. Make sure
that no wall studs, pipes or wires run through the
opening area.
PREPARE THE INSTALLATION
LOCATION
ROOF INSTALLATIONS
PREPARE THE INSTALLATION
LOCATION
WALL INSTALLATIONS
ALL INSTALLATIONS
5. For flat roof installations, build a curb that will mount
the ventilator at a minimum pitch of 2/12. See
Figure 2. Discharge end of the ventilator should
be pointed away from prevailing winds.
20½"
10
3
/
8
"
8½"
20¾"
7¼"
1¼"
dia. hole
9
1
/
8
"
Roof Rafter
REMOVE
SHINGLES
11"
dia.
hole
Roof Rafter
Pilot
Hole
Pilot
Hole
OUTSIDE - ROOF VIEW
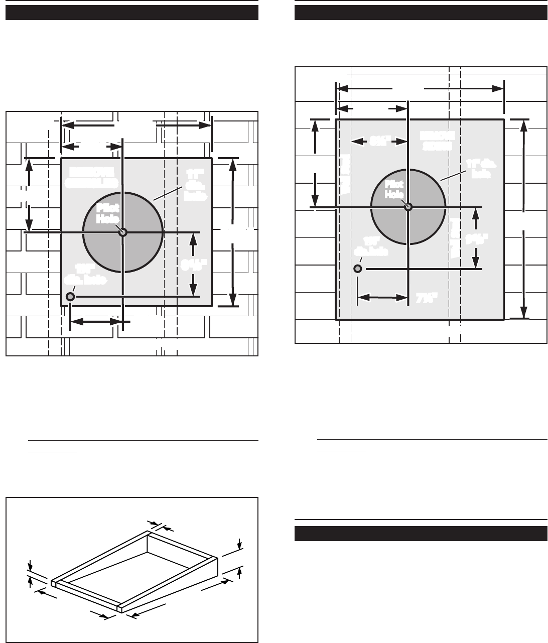
From inside the attic space:
2. Drill a PILOT HOLE up through the roof, 8½"
from the inside edge of a ROOF RAFTER.
From outside - on the roof:
3. Measure and mark the 20¾" x 20½" rectangle.
Cut and remove only the shingles inside this
rectangle.
4. Measure and mark the 11" DIAMETER HOLE
and the 1¼" DIAMETER HOLE. Cut these holes
all the way through the roof.
Figure 1
PREPARE THE VENTILATOR
1. Unpack the ventilator assembly.
2. Remove the cover and screws.
3. Remove and discard cardboard from ventilator
wheel.
4. Remove the wiring box cover and screws.
5. Attach an appropriate U.L. approved cable con-
nector in the hole at the rear of the wiring box.
From inside the wall:
2. Drill a PILOT HOLE through the wall, 8½" from
the inside edge of a WALL STUD.
From outside - on the wall:
3. Measure and mark the 25" x 29½" rectangle.
Cut and remove only the siding inside this
rectangle.
4. Measure and mark the 11" DIAMETER HOLE
and the 1¼" DIAMETER HOLE. Cut these holes
Figure 3
6¾"
2"
28¼"
24¾"
2"
Figure 2