900 CFM Exterior-Power Ventilator Kit - Installation Instructions

10
Orificio de
11 pulg.
(27.9 cm)
de diám.
7 ¼ pulg.
(18.4 cm)
Orificio
de 1 ¼ pulg.
(3.2 cm)
de diám.
9
1
/
8
pulg.
(23.2 cm)
Montante de la pared
10 ¾ pulg.
(27.3 cm)
24 ¾ pulg.
(62.87 cm)
12
7
/
8 pulg.
(32.7 cm)
QUITE LAS
TABLAS
8 ½ pulg.
(21.6 cm)
Orificio
piloto
Orificio
piloto
EXTERIOR – VISTA DE LA PARED
28 ¼ pulg.
(71.76 cm)
Montante de la pared
1. Ubique el ventilador en la pendiente posterior del techo.
Colóquelo en un área en la cual minimice la longitud del
tramo de conducto. Esta área debe estar libre de obstáculos
(cables de T.V., cables eléctricos, etc.). Si la parte superior
del ventilador está al ras del pico del techo, no se verá
desde la calle. Tome en cuenta esta ubicación aproximada
mientras trabaja desde el ático.
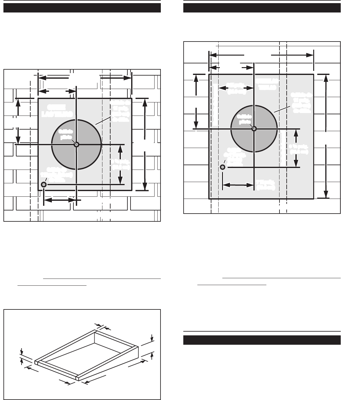
1. Seleccione un lugar en la pared exterior. Asegúrese de
que no haya montantes de la pared, tubería ni cables
tendidos en el área de la abertura.
PREPARE EL LUGAR
DE LA INSTALACIÓN
INSTALACIONES EN EL TECHO
PREPARE EL LUGAR
DE LA INSTALACIÓN
INSTALACIONES EN LA PARED
TODAS LAS INSTALACIONES
5. Para instalar un ventilador sobre un techo plano, construya
un bastidor para soportar el ventilador, con una pendiente
mínima de 2/12. El extremo de descarga del ventilador debe
apuntar en dirección contraria a los vientos dominantes.
9
1
/
8
pulg.
(23.2 cm)
Viga del techo
QUITE
LAS TEJAS
Viga del techo
Orificio
piloto
Orificio
piloto
EXTERIOR - VISTA DEL TECHO
Orificio de
1 ¼ pulg. (3.2 cm)
de diám.
8 ½ pulg.
(21.6 cm)
10
3
/
8
pulg.
(26.4 cm)
20 ½ pulg.
(52.1 cm)
20 ¾ pulg.
(52.7 cm)
7 ¼ pulg. (18.4 cm)
Orificio de
11 pulg.
(27.9 cm)
de diám.
Desde el interior del espacio del ático:
2. Haga un ORIFICIO PILOTO a través del techo, a una
distancia de 8 ½ pulg. (21.6 cm) del borde interior de
una VIGA DEL TECHO.
Desde el exterior, en el techo:
3. Mida y marque el rectángulo de 20 ¾ x 20 ½ pulg. (52.7 x
52.1 cm). Corte y quite sólo las tejas que se encuentran
dentro de este rectángulo.
4. Mida y marque el ORIFICIO de 11 pulg. (27.9 cm) y el
ORIFICIO de 1 ¼ pulg. (3.2 cm) de DIÁMETRO. Haga
estos orificios totalmente a través del techo.
Figura 1
PREPARE EL VENTILADOR
1. Desempaque el conjunto del ventilador.
2. Quite la cubierta y los tornillos.
3. Quite y deseche el cartón de la rueda del ventilador.
4. Quite la cubierta de la caja de conexiones y los tornillos.
5. Coloque un conector de cables apropiado, aprobado por
U.L., en el orificio que se encuentra en la parte posterior
de la caja de conexiones.
Desde el interior de la pared:
2. Haga un ORIFICIO PILOTO a través de la pared, a una
distancia de 8 ½ pulg. (21.6 cm) del borde interior de un
MONTANTE DE LA PARED.
Desde el exterior, en la pared:
3. Mida y marque el rectángulo de 25 x 29 ½ pulg. (63.5 x
74.9 cm). Corte y quite sólo las tablas que se encuentran
dentro de este rectángulo.
4. Mida y marque el ORIFICIO de 11 pulg. (27.9 cm) y el
ORIFICIO de 1 ¼ pulg. (3.2 cm) de DIÁMETRO. Haga
estos orificios totalmente a través de la pared.
Figura 3
6 ¾ pulg.
(17.15 cm)
2 pulg.
(5 cm)
28 ¼ pulg.
(71.76 cm)
24 ¾ pulg.
(62.87 cm)
2 pulg.
(5 cm)
Figura 2