900 CFM Exterior-Power Ventilator Kit - Installation Instructions

6
11" dia.
hole
7¼ "
1¼"
dia. hole
9
1
/
8
"
10 ¾"
24 ¾"
28 ¼"
Wal l S tud
12
7
/
8
"
Wal l S tud
REMOVE
SIDING
8½ "
Pilot
Hole
Pilot
Hole
OUTSIDE - WALL VIEW
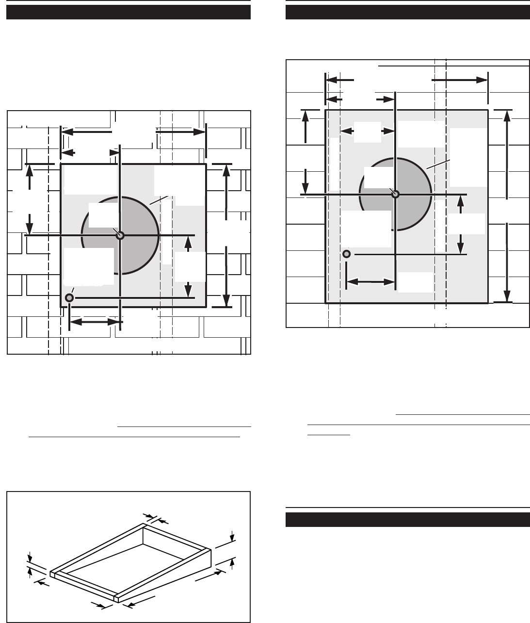
De l’intérieur du mur :
2. Percez un AVANT-TROU à travers le mur, à une
distance de 216 mm (8 ½ po) du rebord intérieur d’un
POTEAU MURAL.TUD.
De l’extérieur –sur le mur :
3. Mesurez et tracez un rectangle de 635 mm x 749 mm
(25 po x 29,5 po). Coupez et retirez seulement
les bardeaux qui se trouvent à lintérieur de ce
rectangle.
4. Mesurez et tracez un ORIFICE D’UN DIAMÈTRE DE
279 MM (11 PO) et un ORIFICE D’UN DIAMÈTRE
DE 32 MM (1 ¼ PO). Découpez ces orifices de part
en part du mur.
EXTÉRIEUR –VUE DU MUR
Avant-
trou
ENLEVEZ
LE
PAREMENT
Orifice
d’un
diamètre
de
279 mm
(11 po)
216 mm
(8½ po)
232 mm
(9-1/8 po)
Orifice d’un
diamètre
de 32 mm
(1¼ po)
184 mm
(7¼po)
273 mm
(10¾ po)
327 mm
(12-7/8 po)
Poteau mural
Poteau mural
ILLUSTRATION 3
1. Choisissez un emplacement de pose pour le ventilateur
sur la pente arrière du toit. Placez-le dans un emplace-
ment réduisant au maximum l’utilisation de conduits.
Cet emplacement doit être exempt d’obstacles (fils de
téléviseur, lignes électriques, etc.) Rappelez-vous que
si le dessus du ventilateur affleure le faîte du toit, il ne
pourra être aperçu de la rue. Gardez cet emplacement en
tête pendant que vous travaillez à partir du grenier.
PRÉPARATION DE L’EMPLACEMENT
DE POSE
POSES SUR LES TOITS
PRÉPARATION DE L’EMPLACEMENT
DE POSE
WALL INSTALLATIONS
TOUS LES TYPES DE POSE
PRÉPARATION DU VENTILATEUR
1. Déballez le ventilateur.
2. Retirez le couvercle et les vis.
3. Enlevez l’emballage de carton protégeant la roue de
ventilateur et jetez-le.
4. Retirez le couvercle du boîtier de câblage et les vis.
5. Fixez un connecteur de câble homologué U.L.dans
l’ouverture à l’arrière du boîtier de câblage.
1. Choisissez un emplacement sur le mur extérieur. As-
surez-vous qu’aucun poteau mural, tuyau ou câble ne
passe au niveau de l’ouverture.
5. Pour les poses sur les toits plats, construisez une bor-
dure qui supportera le ventilateur avec une pente de
2/12. Reportez à la figure 2. L’extrémité de l’évacuation
du ventilateur doit pointer loin des vents dominants.
20½"
10
3
/
8
"
8½"
20¾"
7¼"
1¼"
dia. hole
9
1
/
8
"
Roof Rafter
REMOVE
SHINGLES
11"
dia.
hole
Roof Rafter
Pilot
Hole
Pilot
Hole
OUTSIDE - ROOF VIEW
De l’intérieur du grenier
2. Percez un AVANT-TROU à travers le toit, à une distance de
216 mm (8 ½ po) du rebord inrieur d’un CHEVRON.
De l’extérieur –sur le toit :
3. Mesurez et tracez un rectangle de 527 mm x 521 mm
(20 ¾ po x 20 ½ po). Coupez et retirez seulement les
bardeaux qui se trouvent à l’intérieur de ce rectangle.
4. Mesurez et tracez un ORIFICE D’UN DIAMÈTRE DE
279 MM (11 PO) et un ORIFICE D’UN DIATRE DE
32 MM (1 ¼ PO). Découpez ces orifices de part en part
du toit.
521 mm
(20 1/2 po)
264 mm
(10 3/8 po)
EXTÉRIEUR – VUE DU TOIT
527 mm
(20 ¾ po)
216 mm
(8 ½ po)
184 mm
(7 ¼ po)
Orifice d’un
diamètre
de 32 mm
(1 ¼ po)
232 mm
(9 1/8
po)
Orifice d’un
diamètre de
279 mm (11 po)
ENLEVEZ
LES
BARDEAUX
Avant-
trou
Chevron
Chevron
ILLUSTRATION 1
6¾"
2"
28¼"
24¾"
2"
51 mm
(2 po)
ILLUSTRATION 2
628.7 mm
(24¾ po)
51 mm
(2 po)
717.6 mm
(28¼ po)
628.7 mm (24¾ po)
717.6 mm
(28¼ po)
171.5 mm
(6¾ po)