Product Manual Installation Guide

11
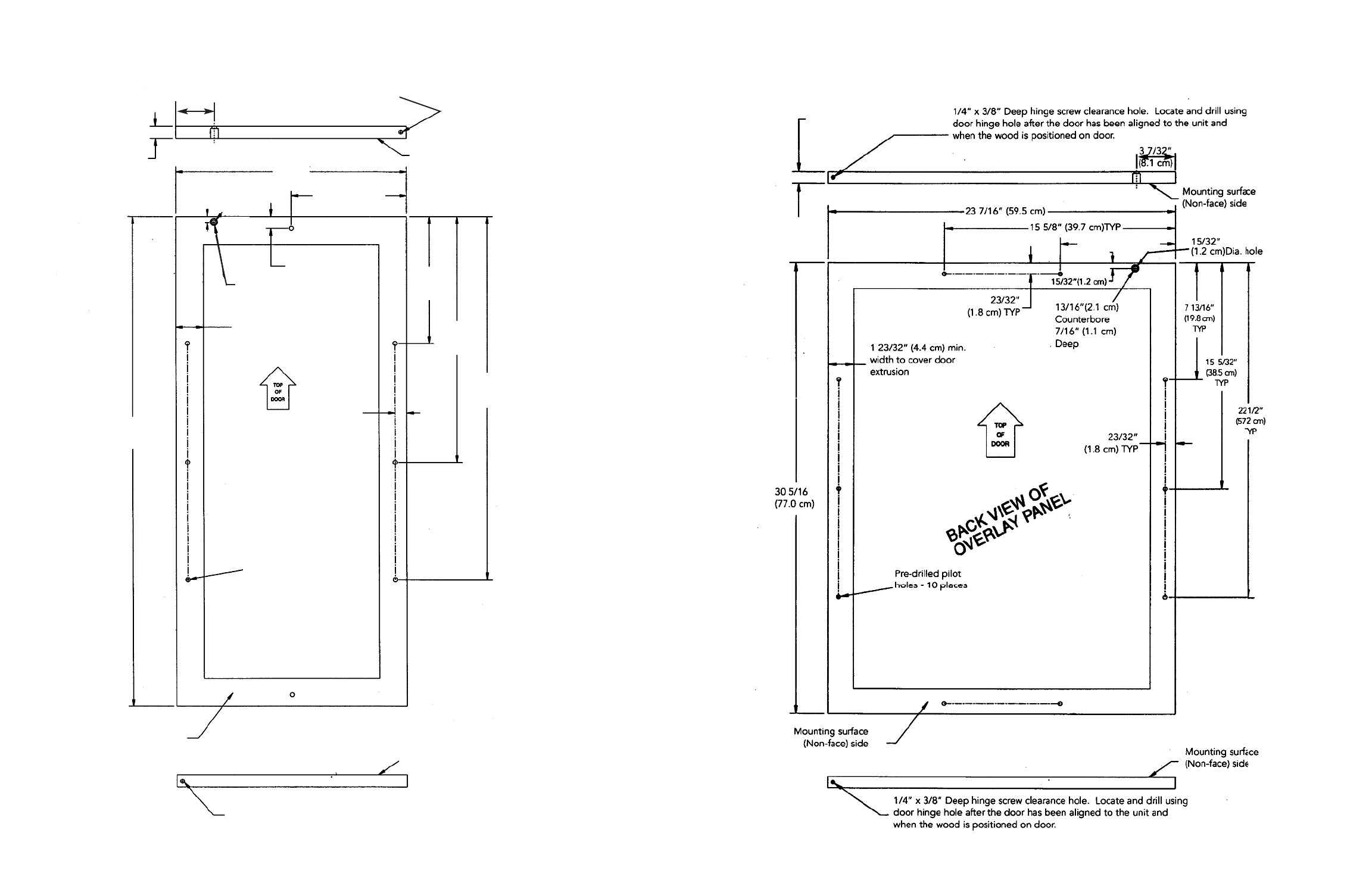
Selecting and Preparing the Wood Frame - 24” W. DFUW Model
FFOORR AA 33--11//22”” TTOOEE KKIICCKK
((CCOOVVEERRSS TTHHEE EENNTTIIRREE DDOOOORR EEXXTTRRUUSSIIOONN))
((LLEEFFTT HHIINNGGEE))
7 13/16” (19.8 cm)
10
F
F
O
O
R
R
A
A
3
3
-
-
1
1
/
/
2
2
”
”
T
T
O
O
E
E
K
K
I
I
C
C
K
K
(
(
C
C
O
O
V
V
E
E
R
R
S
S
T
T
H
H
E
E
E
E
N
N
T
T
I
I
R
R
E
E
D
D
O
O
O
O
R
R
E
E
X
X
T
T
R
R
U
U
S
S
I
I
O
O
N
N
)
)
(
(
R
R
I
I
G
G
H
H
T
T
H
H
I
I
N
N
G
G
E
E
)
)
1/4” X 3/8” Deep hinge screw clearance hole. Locate and drill using door hinge hole
a
fter the door has been aligned to the unit and when the wood is positioned on door
Mounting surface
(Non-face) side
Mounting surface
(non-face) side
Min. 5/8” (1.7 cm)
M
ax. 3/4” (1.9 cm)
14 5/16”
(36.4 cm)
7
5/32” (18.2 cm)
1
23/32” (4.4) cm min. width to cover
door extrusion
23/32”
(1.8 cm)
TYP
30 5/16”
(77.0 cm)
Pre-drilled pilot holes -
8 places
1
5/32”
(
1.2 cm)
3 7/32”
(
8.1 cm)
1
5/32”
(
1.2 cm)
D
ia. hole
Mounting surface
(non-face) side
1/4” X 3/8” Deep hinge screw clearance hole. Locate and drill using
door hinge hole after the door has been aligned to the unit and when
the wood is positioned on door.
23/32”
(1.8 cm) TYP
1
3/16” (2.1 cm) counterbore 7/16”
(
1.1 cm) deep
B
A
CK V
IEW
OF
O
V
ERLA
Y P
AN
EL
7 13/16”
(19.8 cm)
T
YP
15 5/32”
(38.5 cm)
TYP
22 1.2”
(57.2 cm)
TYP