Instruction Manual

16
Stardance Direct Vent/Natural Vent Gas Heater
20007065
For DuraVent pipe only: Install vent pipe by aligning
the locking system together, sliding the pipes togeth-
er and twisting clockwise.
• Install 90° elbow. Twist lock as before.
• Slide the wall plate over horizontal run before at-
taching the horizontal run to the elbow. Fasten wall
plate to wall.
4. For CFM Vent Pipe only: If necessary, measure
to determine the vertical length (X) of pipe required
from the adapter pipe to the wall cutout centerline,
including a 2” overlap at the joint. (Fig. 24) use a
hacksaw or tin snips to trim the pipe as needed.
ST214a
measure vertical vent
12/6/99 djt
X
ST214a
Fig. 24 Determine the vertical pipe length.
5. Install first the inner then the outer straight pipe
section(s), trimmed end down, to the point of the el-
bow. Drill 3 holes through each joint and fasten with
sheet metal screws.
6. Seal and install the elbow using 3 sheet metal
screws at each joint.
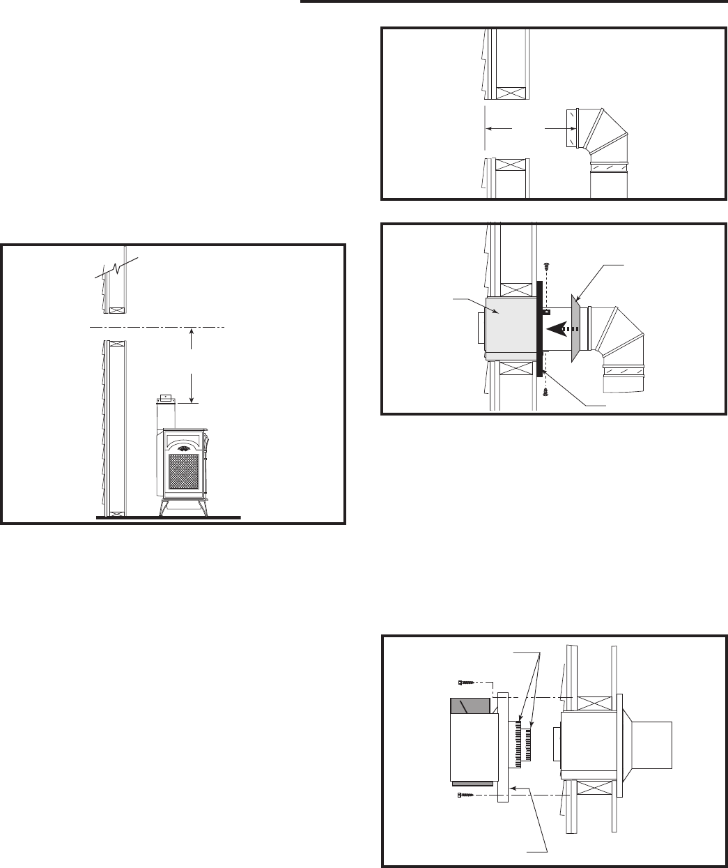
7. Measure, and cut if needed, the appropriate length of
pipe section needed to make the connection through
the wall. Include a 2” overlap; i.e. from the elbow
to the outside wall face, about 2” or the distance
required if installing a second 90° elbow. (Fig. 25)
8. Slip the wall plate and trim collar over the interior end
of the horizontal pipe and install into the wall sleeve.
Seal the joint inside the wall plate if needed to keep
cold air from being drawn into the home.
9. Seal the ends and connect the horizontal pipe to the
elbow. Fasten the wall plate to the pipe with three
sheet metal screws. Slide the trim collar up against
the wall plate to cover the screws. (Fig. 26)
10. For both CFM and DuraVent Systems: Install
the vent terminal. (Fig. 27)
Apply high temperature
sealant one inch from the ends of the inner and outer
collars. Guide the inner and outer vent termination
collars into the adjacent pipes. Double check that
the vent pipes overlap the collars by 2”. Fasten the
termination to the wall with the screws provided, and
caulk the joint with weatherproof sealant.
11. For CFM only: Install Charcoal Gray Pipe Rings
(#7FSDRG) or Polished Brass Pipe Rings (#7FS-
DRP) at pipe joints, if desired.
ST215
measure thru wall
12/6/99 djt
X
ST215
Fig. 25 Measure the horizontal length.
ST216
install pipe thru wall
12/6/99 djt
Wall
Sleeve
Trim Collar
Wall Plate
ST216
Fig. 26 Install the horizontal pipe and wall plate parts.
ST217
install wall terminal
12/6/99 djt
Recessed Wall
Caulk Plate Joint with
Weatherproof Sealant
ST217
Fig. 27 Install the vent terminal.










