Operating instructions

5. Install rst the inner then the outer straight pipe sec-
tion(s), trimmed end down, to the point of the elbow.
Drill 3 holes through each joint and fasten with sheet
metal screws.
6. Seal and install the elbow using 3 sheet metal screws
at each joint.
ZCS103
Zero Clearance Sleeve
& Firestop
12/6/99 djt
12”
(305 mm)
Max. Length
Sleeve
#8 Sheet
Metal Screws
Firestop
ZCS103
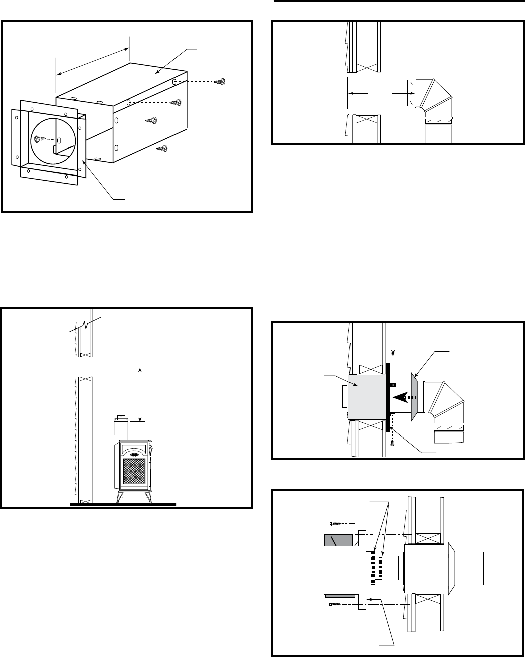
Figure 24 Assemble the wall sleeve and restop.
ST214a
measure vertical vent
12/6/99 djt
X
ST214a
Figure 25 Determine the vertical pipe length.
10. For both Vermont Castings Group and DuraVent
Systems: Install the vent terminal. (Figure 28) Apply
high temperature sealant one inch from the ends of
the inner and outer collars. Guide the inner and outer
vent termination collars into the adjacent pipes. Dou-
ble check that the vent pipes overlap the collars by 2”.
Fasten the termination to the wall with the screws pro-
vided, and caulk the joint with weatherproof sealant.
11. For Vermont Castings Group only: Install Charcoal
Gray Pipe Rings (#7FSDRG) or Polished Brass Pipe
Rings (#7FSDRP) at pipe joints, if desired.
ST215
measure thru wall
12/6/99 djt
X
ST215
Figure 26 Measure the horizontal length.
ST216
install pipe thru wall
12/6/99 djt
Wall
Sleeve
Trim Collar
Wall Plate
ST216
Figure 27 Install the horizontal pipe and wall plate parts.
7. Measure, and cut if needed, the appropriate length of
pipe section needed to make the connection through
the wall. Include a 2” overlap; i.e. from the elbow to the
outside wall face, about 2” or the distance required if
installing a second 90° elbow. (Figure 26)
8. Slip the wall plate and trim collar over the interior end
of the horizontal pipe and install into the wall sleeve.
Seal the joint inside the wall plate if needed to keep
cold air from being drawn into the home.
9. Seal the ends and connect the horizontal pipe to the
elbow. Fasten the wall plate to the pipe with three
sheet metal screws. Slide the trim collar up against the
wall plate to cover the screws. (Figure 27)
ST217
install wall terminal
12/6/99 djt
Seal Both Ter-
minal Ends
Caulk Plate Joint with
Weatherproof Sealant
ST217
Figure 28 Install the vent terminal.
18
Stardance® Direct Vent/Natural Vent Gas Heater
20306760










