Operating instructions

40
73D0024
KHLDV Series Gas Fireplace
Figure 45
The remote transmitter privacy code is preset in facto-
ry. In the event of activation or interference from other
nearby transmissions, change the
code using the following procedures
(learn function must be performed
after changing the code):
1. Press the ON/arrow button and
the TIMER button at the same
time to enter privacy code setup
mode.
2. The setup display is shown in the
gure. The four digits on the top
stand for the privacy code (as the
actual DIP switches on Ambient’s
previous remotes). The default
values of the four digits will be all “1” (ON).
3. The rst digit will be ashing upon entering the setup
mode. Push the ON button to toggle its value between
“0” (OFF) and “1”(ON), and push the “OFF” button
to jump to the next digit. The next digit will then start
ashing and the rst one stops ashing. Set up the
four digits to your choice.
4. After setting up all the four digits, push “OFF” to nish
the process and return to the previous mode.
5. The Signature Command control board then needs to
re-learn the new setting.
1. The RF receiver
button on the con-
trol board in the re-
place must be in the
on position before
the learn function
can begin. Figure
46. With the Com-
mand Center mas-
ter switch in the ON
position, use paper
clip to depress the
recessed button on
Control Board, one
beep for RF receiver ON or two beeps for RF receiver
OFF
2. Holding the OFF button on the Command Center while
turning on the master switch will activate the learn
function for the transmitter.
3. After the above operation, two beeps will be given and
the green LED on the Command Center will ash for
10 seconds.
4. During the 10 seconds, press the OFF button on the
transmitter to learn. Another two beeps will be given to
conrm a successful learning. Figure 47
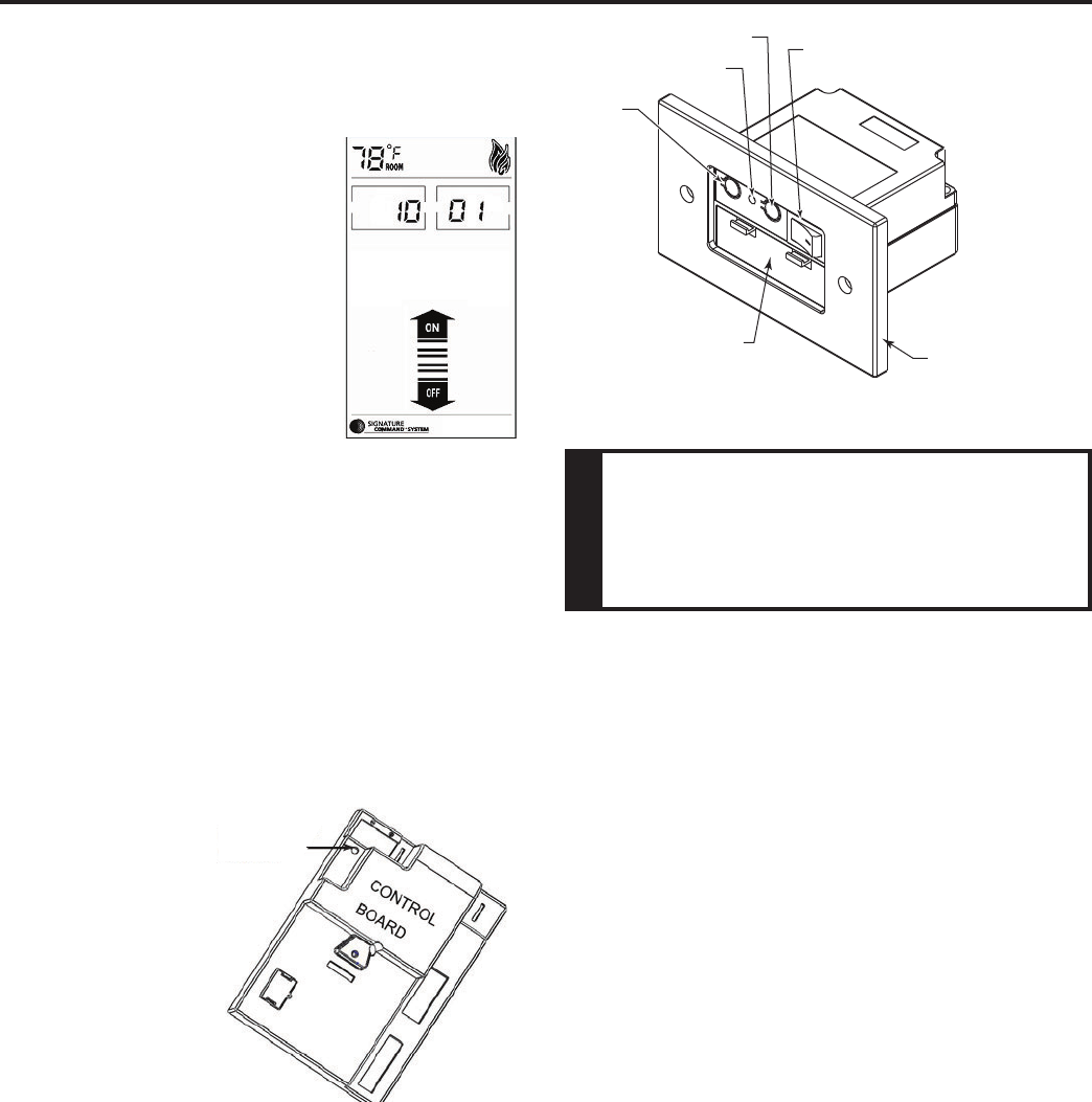
FP2649
set privace code
Figure 45
FP2650
command ctr ctrl brd
Battery Door
Master Switch
ON
LED
OFF
FP2650
Figure 47
If the transmitter is not working properly, reinstall the bat-
teries to reset the transmitter.
1. Pull out at least one of the batteries.
2. Press any key on the screen to discharge.
3. Wait for 10 seconds and reinstall the batteries.
Pushing and holding any key for more than 10 seconds
until the display refreshes will also reset the transmitter.
n Functions and Operations
The TSFRSC Remote Control has four (4) operating
modes: Manual, Timer, Thermostatic and Smart Mode
®
Thermostat. The control system can be set to tempera-
ture range between 45° F and 90° F. The blower speed
and ame height can be adjusted in the manual, timer
and thermostatic mode. The Smart Mode
®
thermostat
will automatically adjust ame height and blower speed
according to the difference between Set and Room tem-
peratures.
The transmitter will operate the remote receiver from 1
foot to a maximum of 30 feet. The distance is reduced
when batteries are low.
Figure 48
In this mode, the TIMER button and the THERMO but-
ton will only display “TIMER” and “THERMO”, respec-
tively without showing the time and the SET temperature.
Pressing the ON/up and OFF/down buttons will change
the ame height if none of the menu buttons (TIMER,
FP2650
command ctr ctrl brd
RF Receiver
ON/OFF
Figure 46
Front Panel Bezel
Optional










