Operating instructions

73D0024
25
KHLDV Series Gas Fireplace
4. Remove glass frame by releasing the three latches
located at the top of the rebox. Tilt glass away from the
unit, lift glass frame up and away from the unit. Page
45
5. Remove logs.
6. Remove hearth brick, wall brick and rear brick.
7. Remove the access covers on the right and left side
walls of the rebox toward the front by unfastening the
screws.
Figure 32
FP1912
Junction box wiring
8/08
120V AC
60Hz
Factory Supplied
Not Supplied
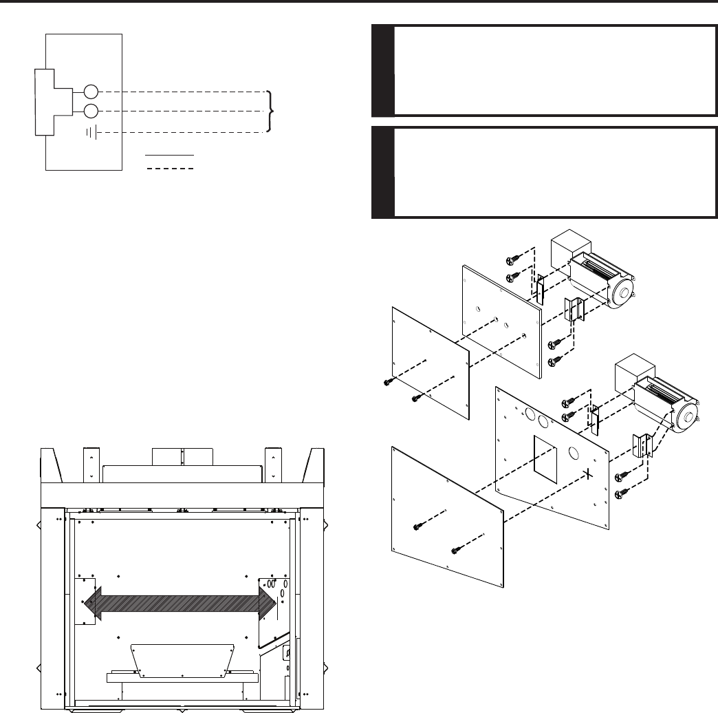
Figure 31 -
Junction Box Wiring Diagram
FP2136
blower access plates
Figure 32 -
Blower Access Covers
FP2136
8. Two screws are already mounted to each cover which
would be utilized to mount the blower to the cover.
Unfasten the two screws and mount the blower bracket
assemblies. Figure 33
9. Consult blower wiring diagram and start the assembly.
Figures 31 & 34. It is helpful to wire the right blower,
the speed control, the fan limit switch, and the power
cord rst. Then plug in the power cord to the junction
box and secure the right cover plate/blower assembly
to the side of the rebox.
10. Assemble the wire clips provided with the blower kit to
the right and left sides of the replace through existing
holes on right and left.
11. Run the wire harness down the right and snap wires
into the clips assembled in #10. Run the two wires
along the glass track, on the oor of the unit, in front
of the rebox
12. Snap the fan limit switch behind the clip already
assembled to the side of the rebox on the front right
hand side. Figure 35
13. Secure the left access plate/blower assembly to the
left side of the rebox. Run the two wires mentioned
earlier up the left rebox wall and snap wires into clip
assembled in #10 on the outer shell wall. Make the
connection to the left blower. Replace the refractory
and hearth refractory (pull away from burner toward
the front).
Figure 33 -
Attach Blowers to Brackets
FP2233
attach blower brackets
1/09
FP2233










