Operating instructions

20
73D0024
KHLDV Series Gas Fireplace
2. Assemble the desired lengths of pipe and elbows nec-
essary to reach from the burner system ue up through
the restop. Be sure pipe and elbow connections are
fully twist-locked.
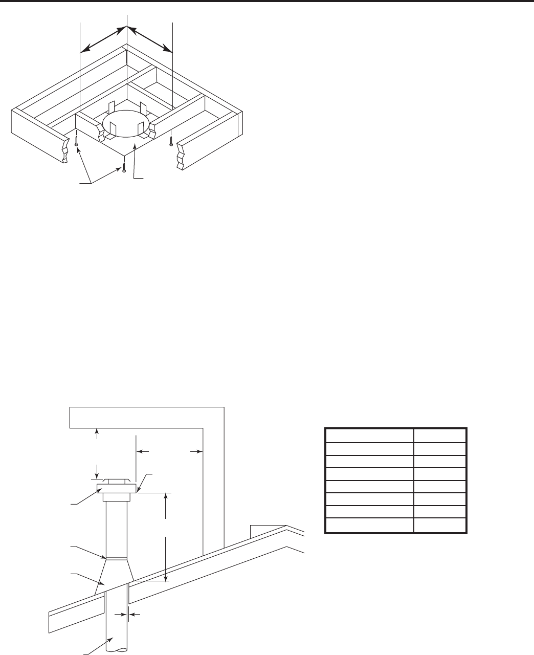
3. Cut a hole in the roof using the locating hole as a center
point. (Cover any exposed open vent pipes before
cutting hole in roof). The 10
1
/2"x10
1/
2" (267 x 267 mm)
hole must be measured on the horizontal. Actual length
may be larger depending on the pitch of the roof. There
must be a 1" minimum clearance from the vent pipe to
combustible materials. (Insulation should be considered
a combustible material).
10
1
/
2
"
10
1
/
2
"
FP1970
firestop no room
Figure 25 - If Area Above is Not a Room, Install
Firestop above Framed Hole as Shown
Nails
Firestop
FP1970
2 ft.
Min.
2 ft. Min.
X
12
H*
FP1971
Min chimney clearance
Horizontal Overhang
Termination Vent
Lowest
Discharge
Opening
Storm Collar
Flashing
Concentric
Vent Pipe
1" Minimum
Clearances to
Combustibles
Vertical Wall
FP1971
Figure 26 -
Minimum Chimney Clearance
Flat to 6/12 1.0
Over 6/12 to 7/12 1.25
Over 7/12 to 8/12 1.5
Over 8/12 to 9/12 2.0
Over 9/12 to 10/12 2.5
Over 10/12 to 11/12 3.25
Over 11/12 to 12/12 4.0
*H - Minimum height from roof to
lowest discharge opening of vent
4. Connect a section of pipe and extend up through the
hole.
If an offset is needed to avoid obstructions, you
must support the vent pipe every three (3) feet. Use wall
straps for this purpose. Refer to Page 18, Figure 21.
Whenever possible, use 45° elbows instead of 90° elbows.
The 45° elbow offers less restriction to the ow of the ue
gases and intake air.
5. Place the ashing over the pipe section(s) extending
through the roof. Secure the base of the ashing to
the roof and framing with roong nails. Be sure roong
material overlaps the top edge of the ashing. There
must be a 1" clearance from the vent pipe to combustible
materials.
6. Continue to add pipe sections until the height of the vent
cap meets the minimum building code requirements.
You must increase vent height for steep roof
pitches. Nearby trees, adjoining roof lines, steep pitched
roofs, and other similar factors may cause poor draft or
down-drafting in high winds. Increasing the vent height
may solve this problem.
If the vent pipe passes through any occupied areas
above the rst oor, including storage spaces and closets,
you must enclose pipe. You may frame and sheetrock the
enclosure with standard construction material. Make sure
to meet the minimum allowable clearances to combustibles.
Do not ll any of the required clearance spaces with
insulation.










