User Guide

15
Vermont Castings EWF30
20008662
local building codes for minimum clearance from top of
fireplace opening to bottom of mantel shelf.
All joints (top, bottom and sides) where wall or deco-
rative facing material meets fireplace surround must
be completely sealed with a noncombustible material.
(Figures 21 and 25)
NOTE: No side wall protection is required for fireplaces
installed at 45° to two (2) side walls (corner installation).
FP531
Fireplace surround detail
1/29/99 djt
Must be sealed with
noncombustible material
Mantel Shelf
Side View
Finished Wall
2 x 4 Stud
Standoff
Cast Front
See mantel drawing for
shelf-to-grille dimension
1” (25mm)
Fireplace
Front (Steel)
2 x 4 Stud
FP1200
Fig. 21 Finishing materials placement.
Brick Ledge
Noncombustible Finish Mate
-
rial Only in this Area
Top View
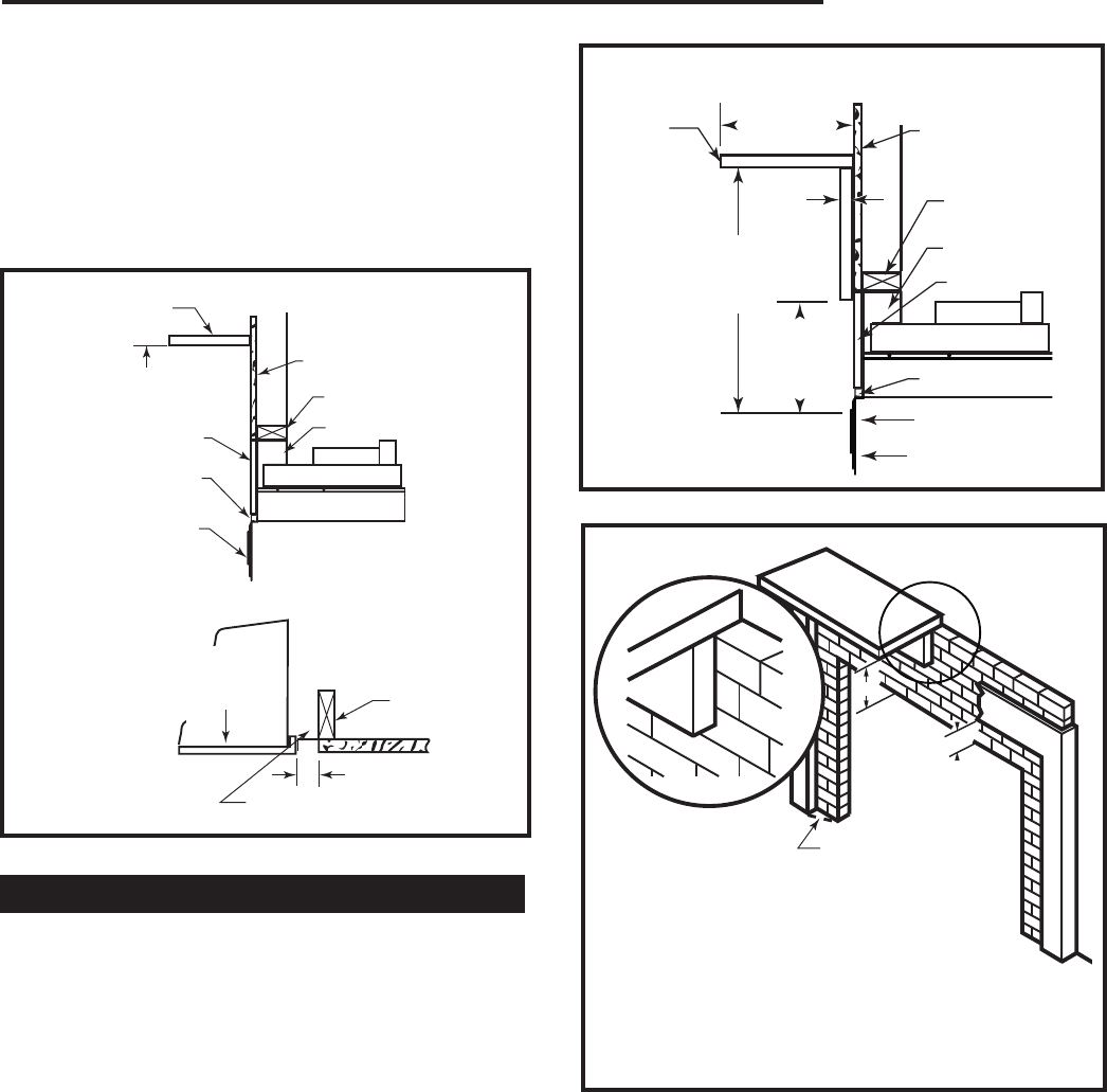
Mantels
The height that a combustible mantel is fitted above the
fireplace is dependent on the depth of the mantel. This
also applies to the distance between the mantel leg (if
fitted) and the fireplace.
For the correct mounting heights and widths, refer to
Figures 22 and 23. When using paint or lacquer to finish
the mantel, such paint or lacquer must be heat resistant
to prevent discoloration.
FP1398
Fig. 22 Combustible mantel minimum opening.
FP1398
wood mantels
8/18/03 djt
6"
(159mm)
Min.
12"
(305mm)
Min.
1"
(38mm)
12"
(305mm)
Max.
Combustiible
Mantel and
Trim
Finished Wall
Header
Standoff
Noncombustible
Material
Brick Ledge
GrilleOpening
Fireplace
Front
MA81
Fig. 23 Combustible mantel clearances.
MA81
rev. 8/5/97
*
1"
Ref.
**
Combustible materials
are permitted within a
shaded area shown in
Figure 25 titled
Minimum Wall
Clearances
* 12” (305 mm) from top of grille opening.
** 6” (152 mm) from top of grille opening.










