Specification Sheet

DUCT FREE WALL MOUNT RANGE HOOD SPECIFICATIONS
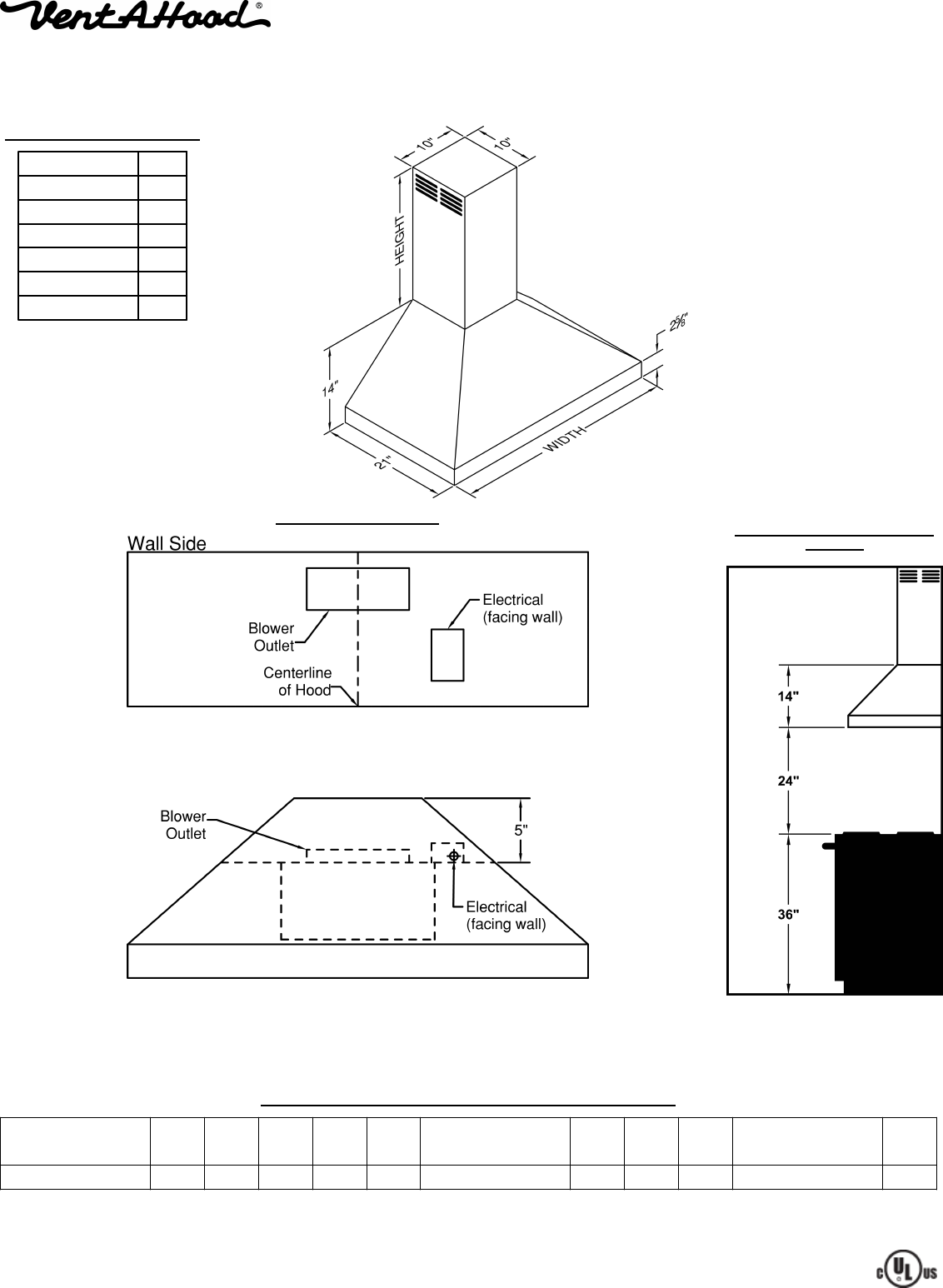
PDAH14-K30
Halogen lights. This model is not available with heat lamps. Shown with ARS duct cover (sold separately). ARS duct covers are available in 8' 9' ceiling sizes.
Dimensional Information
Width
30.0
Depth
21.0
Height
14.0
CFM @ 0.0" SP
n/a
Sones
n/a
Amps
3.2
# Lights
2.0
Recommended Mounting
Height*
*Exceeding recommended mounting height
may compromise performance.
Electrical/Mechanical Specifications For Blower Unit
Model Volts Amps* Hz RPM
CFM
SP@0.0"
Equivalent CFM
CFM
SP@0.1"
CFM
SP@0.2"
CFM
SP@0.3"
Minimum Round Duct Size Sones
#
K250 (ARS) 115.0 2.2 60.0 1550.0 n/a n/a n/a n/a n/a n/a n/a
SPECIFICATIONS SUBJECT TO CHANGE WITHOUT NOTICE
Connection Diagram
(Top View)
(Front View)

