Spec Sheet

WALL MOUNTED LINER INSERT SPECIFICATIONS
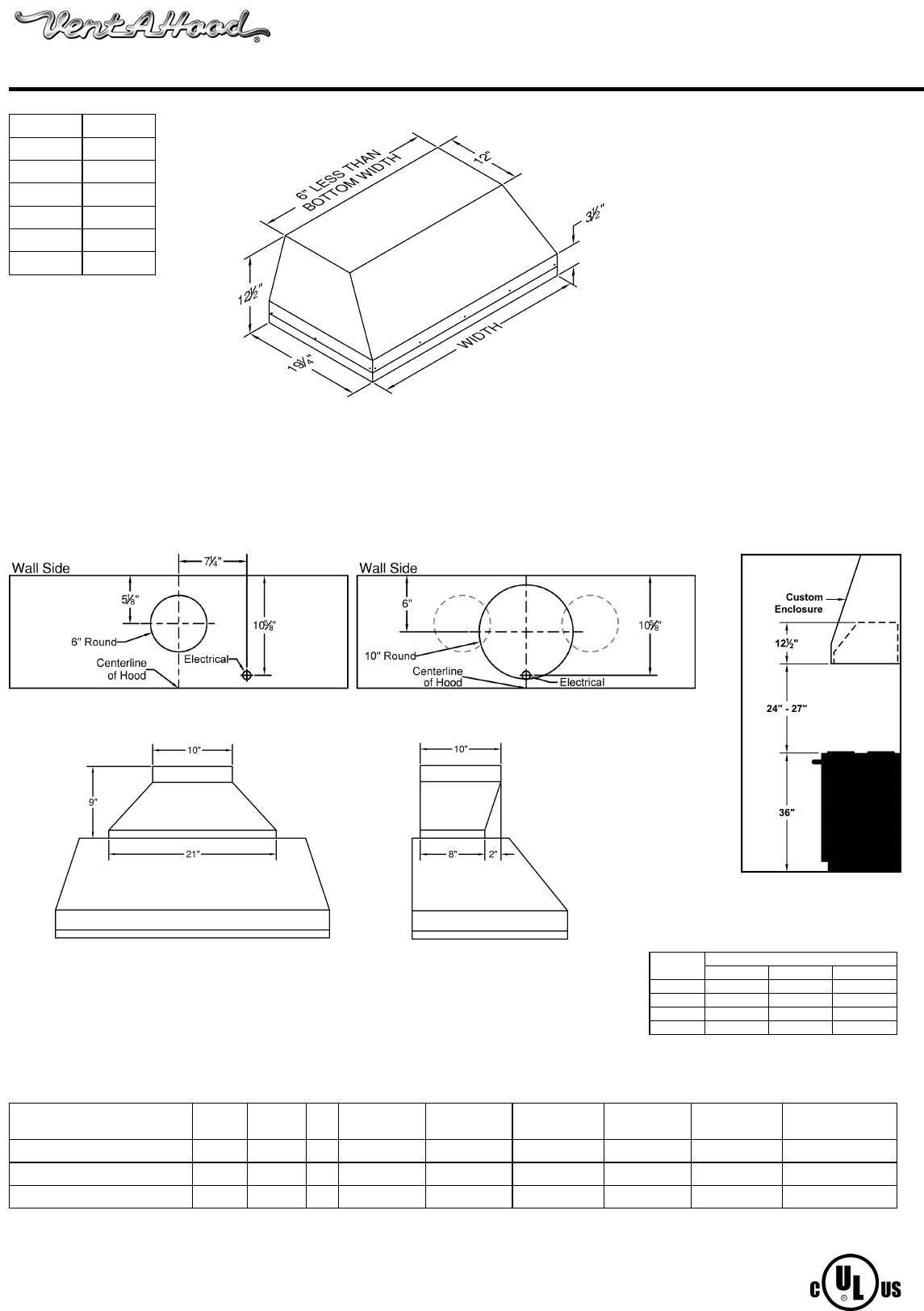
Model Number: M34SLD
Special Notes: Equipped with halogen lighting. M600 and M1200 blowers are sold separately. Features stainless steel baffle filters.
WIDTH: 34 3/8"
DEPTH: 19 1/4"
HEIGHT: 12 1/2"
CFM: (Chart A)
SONES: N/A
AMPS: (Chart B)
# LIGHTS: 2
REC. MOUNTING HEIGHT*
* Exceeding recommended
mounting height may compromise
performance.
CONNECTION DIAGRAM
M600 & M1200 Connection Diagrams
(Front View) (Side View)
(CHART A) ELECTRICAL/MECHANICAL SPECIFICATIONS FOR BLOWER UNIT
MODEL VOLTS AMPS+ HZ CFM SP@0.0" CFM SP@0.1" CFM SP@0.25" CFM SP@0.5" CFM SP@0.75"
MIN. ROUND DUCT
SIZE
M600 Single 115 5.0 60 630 625 615 600 580 6" (28in.^2)
M600 w/WHM300 Harness 115 5.0 60 302 300 295 288 278 6" (28in.^2)
M1200 Dual 115 10.0 60 1035 1015 1000 995 915 10" (79in.^2)
(CHART B)
SPEED
CFM @ 0.1" S.P.
M600 WHM300 * M1200
1 240 240 420
2 300 300 645
3 500 - 865
4 625 - 1015
* The WHM300 is a wiring harness that when
used with the M600 blower (sold separately) will
disable blower speeds exceeding 300 CFM.
+Add 0.5 amp for each halogen light. Hoods are available with halogen lights (2 lights: 30" - 41", 3 lights: 42" - 53", 4 lights: 54" - 66").
Specifications Subject To Change Without Notice

